Проект двухэтажного дома Дом из бруса Мансардный-198
Площадь
198 м 2
Размер дома:
Этажей:
2
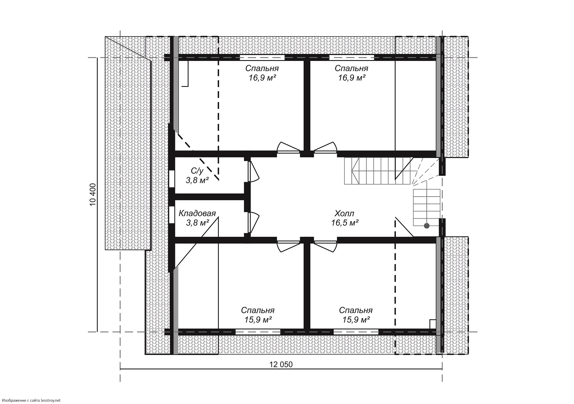
Спален:
4
Санузел:
0
Гараж:
Нет
Баня:
Нет
Терраса:
Нет
Панорамные окна:
Нет
Мастер-спальня:
Нет
О проекте
Здание выглядит современно, но сохраняет ощущение домашнего уюта. 128 м² — дом, в который хочется возвращаться. металлочерепица придаёт дому выразительность и надёжность. Дом спроектирован в духе дома в стиле шале. Конструкция из бруса обеспечивает прочность и долговечность.Характеристики
- Общая площадь: 198 м2
- Количество этажей: 2
- Стиль, разновидность: Дома в ином стиле
- Форма: Прямоугольные дома
- Тип кровли: Дома с мансардной крышей
- Отделка: Без отделки
Отправьте свои контакты и мы расчитаем вам смету
Скорее всего вам подойдут следующие проекты домов:
Дом подходит для:
Дом подходит для:
Дом подходит для:











