Проект двухэтажного дома Дом из бруса Расмус
Площадь
180 м 2
Размер дома:
9x15
Этажей:
2
Спален:
2
Санузел:
0
Гараж:
Нет
Баня:
Нет
Терраса:
Нет
Панорамные окна:
Нет
Мастер-спальня:
Нет
О проекте
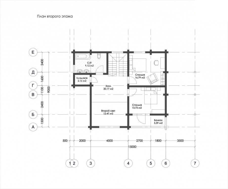
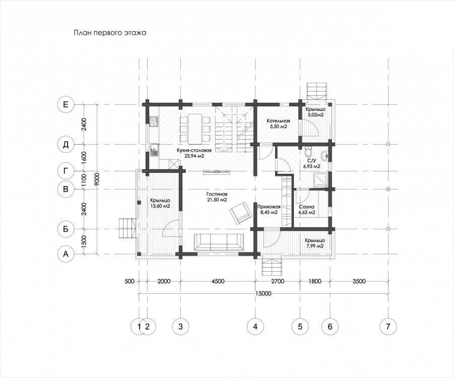
Архитектура здания отвечает современным стандартам, интерьеры - потребностям семьи.С такими параметрами (140 м²) легко зонировать пространство. Крыша из рубероид подчёркивает современный облик дома. Двухэтажная удобная планировка обеспечивает практичное распределение комнат. Дом спроектирован в духе дома в стиле шале.Характеристики
- Общая площадь: 180 м2
- Количество этажей: 2
- Стиль, разновидность: Дома в стиле Русский
- Форма: Прямоугольные дома
- Тип кровли: Дома с четырехскатной крышей (вальмовой)
- Отделка: Без отделки
- Размер: 9x15
Отправьте свои контакты и мы расчитаем вам смету
Скорее всего вам подойдут следующие проекты домов:
Дом подходит для:
Дом подходит для:
Дом подходит для:












