Проект двухэтажного дома Дом из двойного бруса Вермонт
Площадь
67 м 2
Размер дома:
Этажей:
2
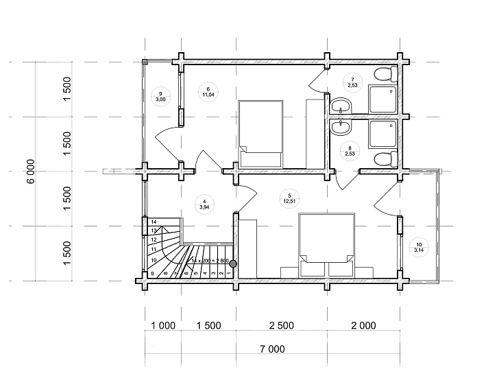
Спален:
2
Санузел:
0
Гараж:
Нет
Баня:
Нет
Терраса:
Нет
Панорамные окна:
Нет
Мастер-спальня:
Нет
О проекте
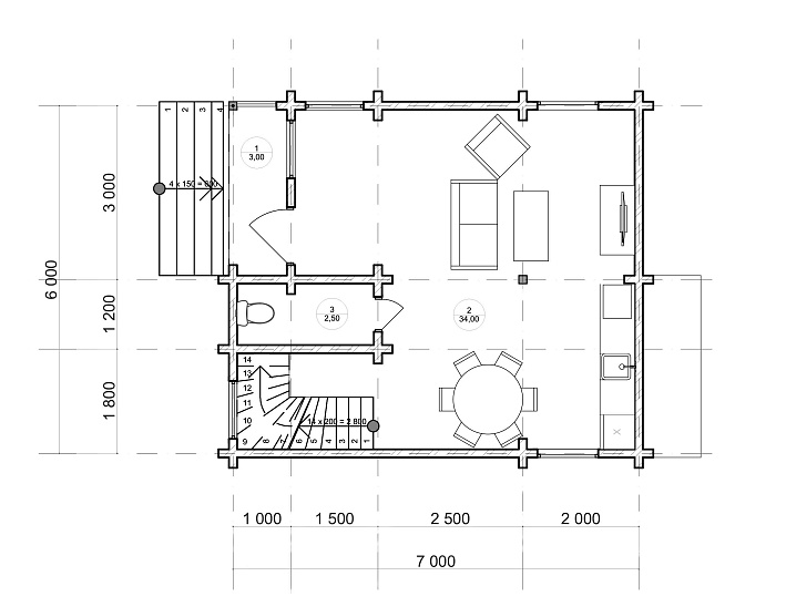
Этот брусовый дом на 67 м² отличается компактностью и продуманной планировкой. Несмотря на небольшую площадь, здесь есть все для комфортного проживания. Натуральные материалы создают уютную атмосферу. Отличный выбор для дачи или временного жилья.Характеристики
- Общая площадь: 67 м2
- Количество этажей: 2
- Стиль, разновидность: Дома в ином стиле
- Форма: Квадратные дома
- Тип кровли: Дома с двускатной крышей
- Отделка: Без отделки
Отправьте свои контакты и мы расчитаем вам смету
Скорее всего вам подойдут следующие проекты домов:
Дом подходит для:
Дом подходит для:
Дом подходит для:














