Проект двухэтажного дома Двухэтажный дом в стиле Райта -198
Площадь
198 м 2
Размер дома:
Этажей:
2
Спален:
2
Санузел:
0
Гараж:
Нет
Баня:
Нет
Терраса:
Нет
Панорамные окна:
Нет
Мастер-спальня:
Нет
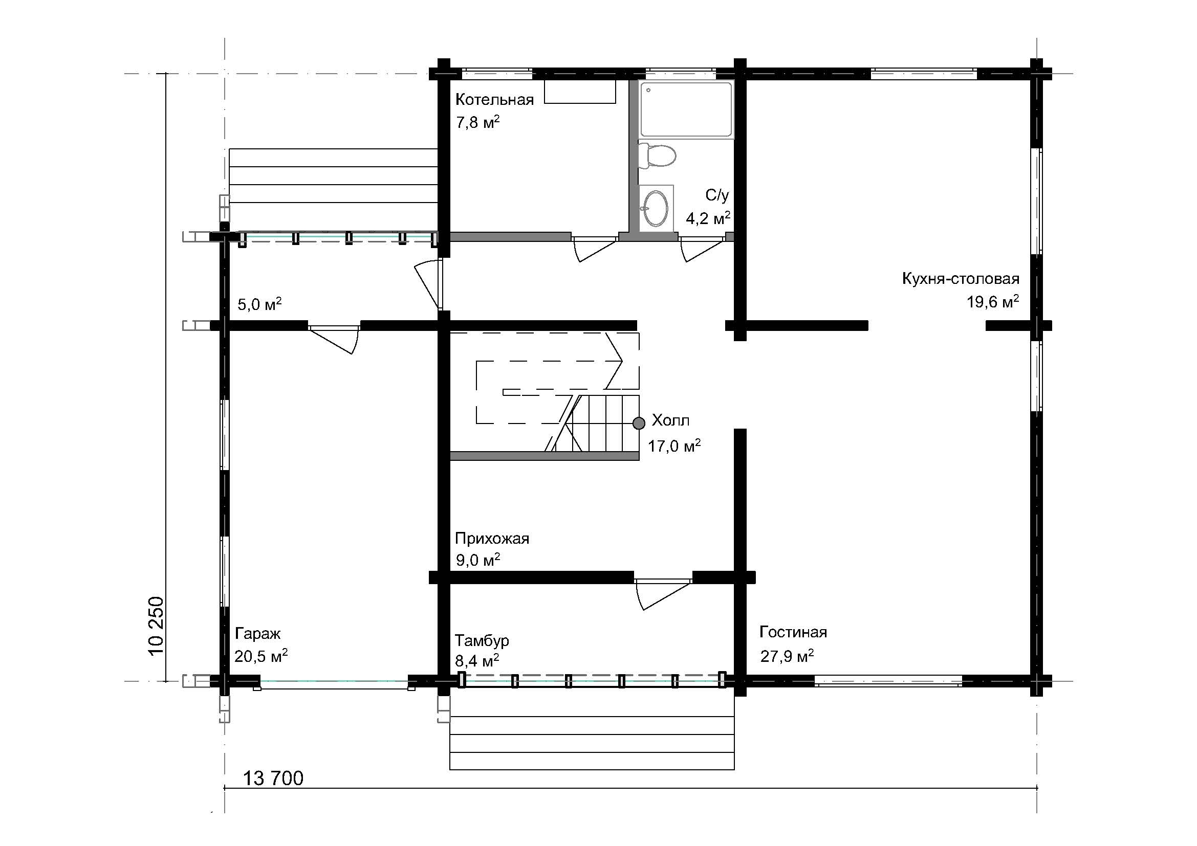
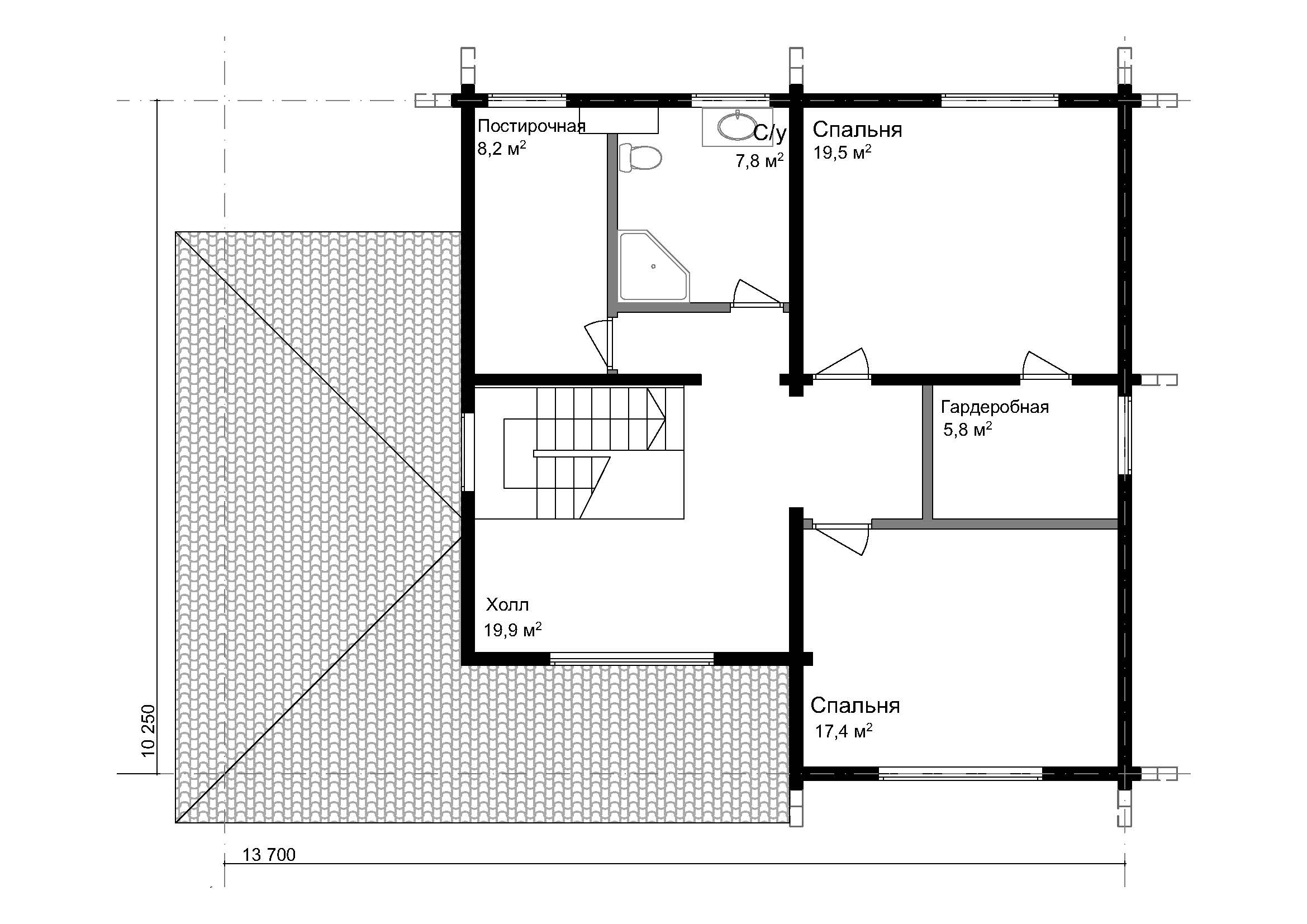
О проекте
Архитектура соответствует современным стандартам, не теряя в уюте.25 м² вмещают всё необходимое без излишеств. В доме предусмотрено 1 спальня, что важно для комфорта. Дом спроектирован в духе дома в стиле лофт. Стены из бруса хорошо держат тепло и защищают от шума.Характеристики
- Общая площадь: 198 м2
- Количество этажей: 2
- Стиль, разновидность: Дома в стиле Модерн
- Форма: Квадратные дома
- Тип кровли: Дома с полувальмовой крышей (полущипцовой)
- Отделка: Без отделки
Отправьте свои контакты и мы расчитаем вам смету
Скорее всего вам подойдут следующие проекты домов:
Дом подходит для:
Дом подходит для:
Дом подходит для:











