Проект одноэтажного дома Эдинбург
Дом подходит для:
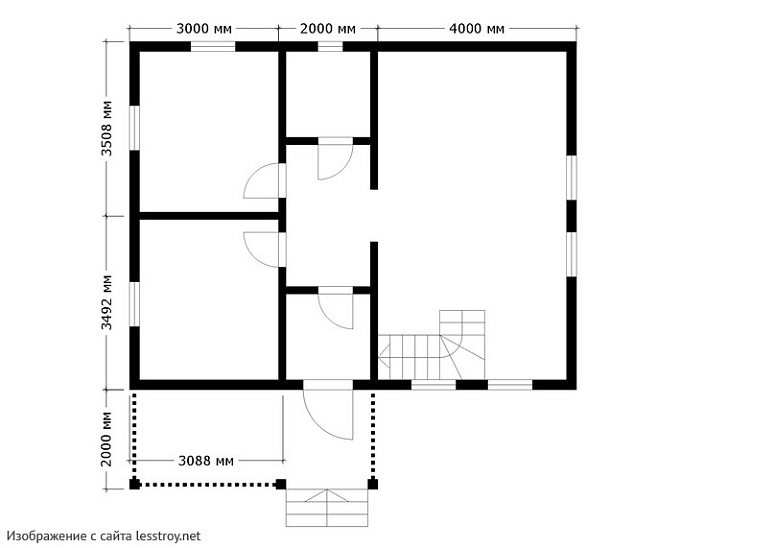
Площадь
68 м 2
Размер дома:
6,5x10,5
Этажей:
1
Спален:
2
Санузел:
1
Гараж:
Нет
Баня:
Нет
Терраса:
Да
Панорамные окна:
Нет
Мастер-спальня:
Нет
Планировка
Фасады
О проекте
Стильный дом площадью 68 м² в стиле барнхаус предлагает современное решение для небольшой семьи. 49 м² жилой площади организованы с заботой о комфорте, создавая атмосферу свободы и легкости. Каркасная конструкция делает дом теплым и надежным, а натуральные материалы добавляют интерьеру природной теплоты. Это жилье, где современный дизайн служит повседневному удобству.Характеристики
- Общая площадь: 68 м2
- Жилая площадь: 49 м2
- Количество этажей: 1
- Гараж: нет
- Площадь кровли: 73 м2
- Стиль, разновидность: Дома в стиле Барнхаус
- Форма: Квадратные дома
- Тип кровли: Дома с двускатной крышей
- Пристрой: Дома с верандой
- Отделка: С черновой отделкой
- Фундамент: Дома со свайно-винтовым фундаментом
Материалы и перечень работ
- Винтовые сваи 108 х 300 х 2500 мм, заливаются песко-цементной смесью
- Обвязка 150 x 150 мм. (срощенная из доски камерной сушки); Гидроизоляция: Рубероид марки 350
- Лаги брус камерной сушки 45 x 190 мм, шаг не более 580 мм
- Перегородки каркас: 50 х 100 мм
- Фронтоны каркас камерной сушки: 45 x 140 мм
- Стропильная система доска 45 x 140 мм (камерной сушки), шаг не более 580 мм;
- Обработка стропильной системы Неомидом
- Обрешетка, контробрешетка обрезная доска камерной сушки 25 x 100 мм, допускается шаг не более 330 мм; Брусок 50 х 50 мм
- Кровля (дом, терраса, крыльцо) фальцевая кровля Grand Line из коллекции Кликфальц 0,5 мм
- Гидроизоляция крыши ветро-влагозащитная трехслойная мембрана - Изоспан АМ или KNAUF Extra АХ
- Окна ПВХ 70 мм двухкамерные С/П с энергосбережением, поворотно-откидные
- Металлическая дверь Термо РФ, 960 мм, Россия
- В стоимость не входит
- Наружная ветрозащита непроницаемая для воздуха и влаги пленочная мембрана - Изоспан А или KNAUF Extra от Дождя и Ветра
- Отделка стен вентилируемый зазор, рейка (50 x 40 мм) - Фальцевая кровля Кликфальц Grand Line;
- Свесы карнизные и фронтонные 600 мм, подшивка - имитация бруса (камерной сушки) 16 мм
- Винтовые сваи 108 х 300 х 2500 мм, заливаются песко-цементной смесью
- Обвязка 150 x 150 мм. (срощенная из доски камерной сушки); Гидроизоляция: Рубероид марки 350
- Лаги брус камерной сушки 45 x 190 мм, шаг не более 580 мм
- Перегородки каркас: 50 х 100 мм
- Фронтоны каркас камерной сушки: 45 x 140 мм
- Стропильная система доска 45 x 140 мм (камерной сушки), шаг не более 580 мм;
- Обработка стропильной системы Неомидом
- Обрешетка, контробрешетка обрезная доска камерной сушки 25 x 100 мм, допускается шаг не более 330 мм; Брусок 50 х 50 мм
- Кровля (дом, терраса, крыльцо) фальцевая кровля Grand Line из коллекции Кликфальц 0,5 мм
- Гидроизоляция крыши ветро-влагозащитная трехслойная мембрана - Изоспан АМ или KNAUF Extra АХ
- Окна ПВХ 70 мм двухкамерные С/П с энергосбережением, поворотно-откидные
- Металлическая дверь Термо РФ, 960 мм, Россия
- В стоимость не входит
- Наружная ветрозащита непроницаемая для воздуха и влаги пленочная мембрана - Изоспан А или KNAUF Extra от Дождя и Ветра
- Отделка стен вентилируемый зазор, рейка (50 x 40 мм) - Фальцевая кровля Кликфальц Grand Line;
- Свесы карнизные и фронтонные 600 мм, подшивка - имитация бруса (камерной сушки) 16 мм
Что еще входит в стоимость:
Отправьте свои контакты и мы расчитаем вам смету
Скорее всего вам подойдут следующие проекты домов:
Дом подходит для:
Дом подходит для:
Дом подходит для:









