Проект двухэтажного дома Ельдигино
Дом подходит для:
Площадь
182 м 2
Размер дома:
10х11,7
Этажей:
2
Спален:
5
Санузел:
2
Гараж:
Нет
Баня:
Нет
Терраса:
Нет
Панорамные окна:
Нет
Мастер-спальня:
Нет
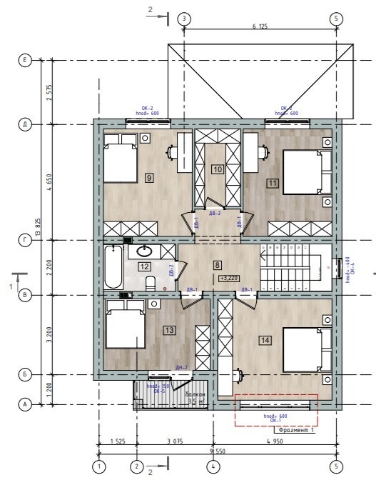
Планировка
Фасады
О проекте
Ельдигино — просторный кирпичный дом площадью 182 м² с жилыми 147 м², где каждый метр продуман для комфорта. Просторные помещения наполнены светом, а натуральные материалы дарят тепло и умиротворение. Металлочерепица дополняет современный облик, а удобная планировка делает жизнь здесь по-настоящему приятной. Идеальное место для большой семьи.Характеристики
- Общая площадь: 182 м2
- Жилая площадь: 147 м2
- Количество этажей: 2
- Гараж: нет
- Площадь кровли: 197 м2
- Стиль, разновидность: Дома в стиле Лофт
- Форма: Квадратные дома
- Тип кровли: Дома с четырехскатной крышей (вальмовой)
- Отделка: White box
- Отделка фасада: Дома с комбинированной отделкой
- Фундамент: Дома с плитным фундаментом
- Класс дома: Дома класса Стандарт
Материалы и перечень работ
- Утепленная монолитная плита с усиленными ребрами жесткостями под несущие стены
- Разделяющий слой из геотекстиля (Такая прослойка станет надежным барьером и предотвратит смешивание песка и его заиливание);
- Песчаная подушка с послойным трамбованием;
- Теплоизоляция фундамента и грунта под зданием (ЭППС 50мм)
- Бетон В25 (М350) сертифицированный;
- Несущие стены толщиной 300 мм, благодаря высоким теплотехническим свойствам с учетом внешней отделки (кирпичная кладка/утепленные панели под кирпич) проходят норму теплосопротивляемости и не нуждаются в дополнительном утеплении.
- Изготовление ж/б армопояса соответствует требования СНиП, что позволяет выдерживать большие нагрузки и распределять их равномерно;
- Армопояс утеплен и исключает мостики холода.
- Перекрытия из железобетонных плит заводского изготовления. Расчетная прочность которых в 5 раз выше, чем деревянное перекрытия из бруса.
- Покрытие кровли - металлочерепица Grandline с полимерным покрытием Satin
- Стропильная система Брус естественной влажности, по ГОСТ. Размер сечения 50 х 200 мм.
- Гидро-ветрозащитная мембрана
- Многослойная паронепроницаемая армированная плёнка из полиэтилена. С алюминиевым рефлексным слоем, защищённым прозрачным полиэфирным покрытием.
- В стоимость не входит
- В стоимость не входит
- В стоимость не входит
- Утепленная монолитная плита с усиленными ребрами жесткостями под несущие стены
- Разделяющий слой из геотекстиля (Такая прослойка станет надежным барьером и предотвратит смешивание песка и его заиливание);
- Песчаная подушка с послойным трамбованием;
- Теплоизоляция фундамента и грунта под зданием (ЭППС 50мм)
- Бетон В25 (М350) сертифицированный;
- Несущие стены толщиной 300 мм, благодаря высоким теплотехническим свойствам с учетом внешней отделки (кирпичная кладка/утепленные панели под кирпич) проходят норму теплосопротивляемости и не нуждаются в дополнительном утеплении.
- Изготовление ж/б армопояса соответствует требования СНиП, что позволяет выдерживать большие нагрузки и распределять их равномерно;
- Армопояс утеплен и исключает мостики холода.
- Перекрытия из железобетонных плит заводского изготовления. Расчетная прочность которых в 5 раз выше, чем деревянное перекрытия из бруса.
- Покрытие кровли - металлочерепица Grandline с полимерным покрытием Satin
- Стропильная система Брус естественной влажности, по ГОСТ. Размер сечения 50 х 200 мм.
- Гидро-ветрозащитная мембрана
- Многослойная паронепроницаемая армированная плёнка из полиэтилена. С алюминиевым рефлексным слоем, защищённым прозрачным полиэфирным покрытием.
- В стоимость не входит
- В стоимость не входит
- В стоимость не входит
Что еще входит в стоимость:
Отправьте свои контакты и мы расчитаем вам смету
Скорее всего вам подойдут следующие проекты домов:
Проект двухэтажного дома Верея
Семья с двумя детьми
Дом подходит для:
Дом подходит для:
Проект двухэтажного дома Архангельское
Для большой семьи
Дом подходит для:
Дом подходит для:
Проект двухэтажного дома Аббакумово OLD
Семья с двумя детьми
Дом подходит для:
Дом подходит для:









