Проект двухэтажного дома Ермак (М) - 190
Площадь
154 м 2
Размер дома:
Этажей:
2
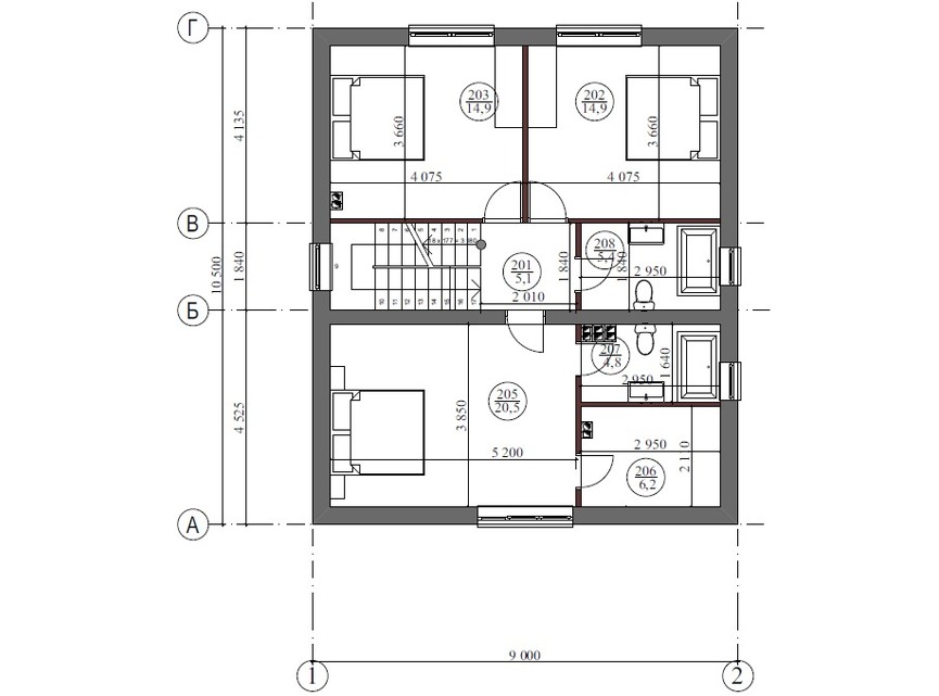
Спален:
4
Санузел:
0
Гараж:
Нет
Баня:
Нет
Терраса:
Нет
Панорамные окна:
Нет
Мастер-спальня:
Нет
О проекте
Современный дом из керамоблоков площадью 154 м² с четырьмя спальнями идеален для семьи. Металлочерепица и минималистичный дизайн делают его стильным.Характеристики
- Общая площадь: 154 м2
- Количество этажей: 2
- Стиль, разновидность: Дома в стиле Минимализм
- Форма: Прямоугольные дома
- Тип кровли: Дома с двускатной крышей
- Отделка: Без отделки
Отправьте свои контакты и мы расчитаем вам смету
Скорее всего вам подойдут следующие проекты домов:
Дом подходит для:
Дом подходит для:
Дом подходит для:














