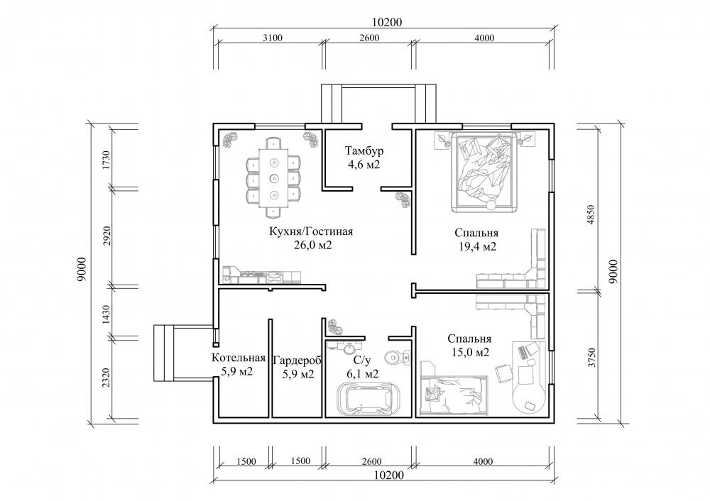
Проект одноэтажного дома Филин 3
Площадь
98 м 2
Размер дома:
9x10
Этажей:
1
Спален:
2
Санузел:
0
Гараж:
Нет
Баня:
Нет
Терраса:
Нет
Панорамные окна:
Нет
Мастер-спальня:
Нет
О проекте
Интерьеры, в которых хочется рассматривать каждую деталь. Свободная планировка в 98 м² вдохновляет на перемены. Количество спален — 2, делая планировку гибкой. Дом спроектирован в духе дома в классическом стиле. Одноэтажная просторная планировка обеспечивает комфортную навигацию внутри дома.Характеристики
- Общая площадь: 98 м2
- Количество этажей: 1
- Стиль, разновидность: Дома в ином стиле
- Тип кровли: Дома с двускатной крышей
- Отделка: Без отделки
- Размер: 9x10
Отправьте свои контакты и мы расчитаем вам смету
Скорее всего вам подойдут следующие проекты домов:
Дом подходит для:
Дом подходит для:
Дом подходит для:











