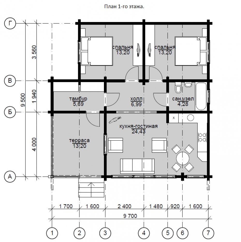
Проект одноэтажного дома Каркасный дом 10х10 (Проект К1-6)
Площадь
92 м 2
Размер дома:
9x9
Этажей:
1
Спален:
2
Санузел:
0
Гараж:
Нет
Баня:
Нет
Терраса:
Нет
Панорамные окна:
Нет
Мастер-спальня:
Нет
О проекте
Пространство, в котором дизайн практичен. 92 м² — пространство для свободы и личных решений. Архитектура выполнена в стиле дома в классическом стиле. Проект включает 2 спальни — удобно для семьи. Это одноэтажная структура, которая делает зонирование более логичным.Характеристики
- Общая площадь: 92 м2
- Количество этажей: 1
- Стиль, разновидность: Дома в ином стиле
- Форма: Квадратные дома
- Тип кровли: Дома с двускатной крышей
- Отделка: Без отделки
- Размер: 9x9
Отправьте свои контакты и мы расчитаем вам смету
Скорее всего вам подойдут следующие проекты домов:
Дом подходит для:
Проект одноэтажного дома Каркасный дом 9.5х12 (Проект К1-7)
Семья с одним ребенком
Дом подходит для:
Дом подходит для:
Дом подходит для:











