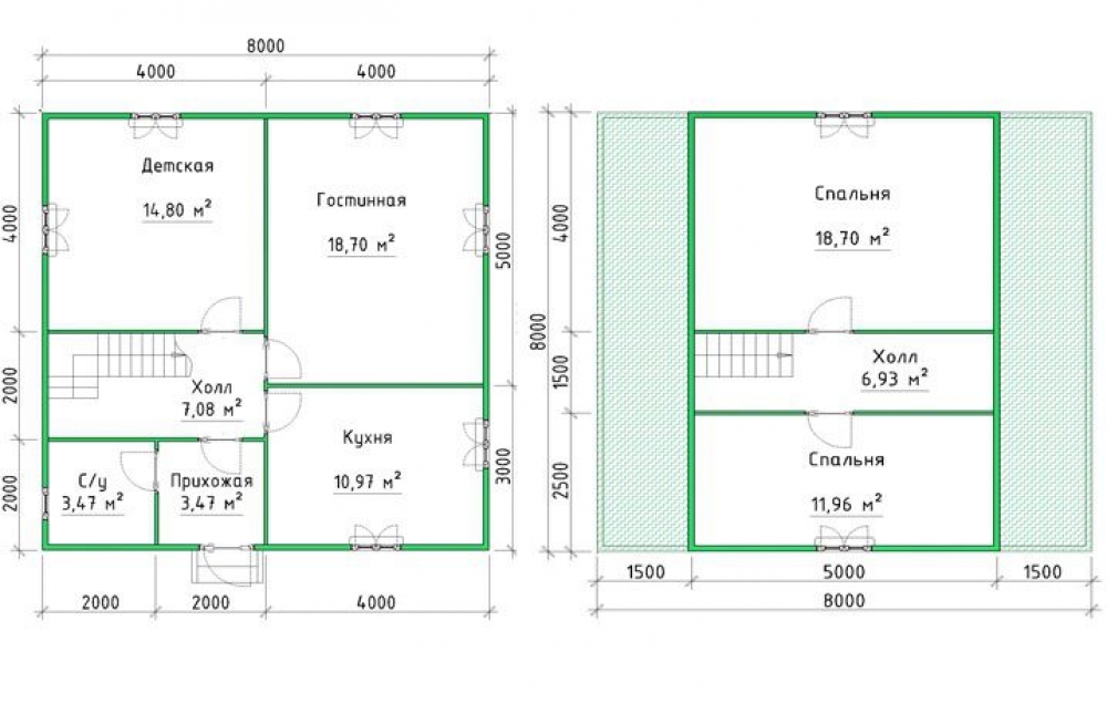
Проект двухэтажного дома Каркасный дом с мансардным этажом под ключ 8х8 Д-40
Площадь
96 м 2
Размер дома:
8x8
Этажей:
2
Спален:
4
Санузел:
0
Гараж:
Нет
Баня:
Нет
Терраса:
Нет
Панорамные окна:
Нет
Мастер-спальня:
Нет
О проекте
Интерьеры, где электропроводка продумана до мелочей96 м² — пространство для свободы и личных решений. Проект включает 4 спальни — удобно для семьи. Материал кровли — ондулин, что добавляет зданию индивидуальность. Конструкция из Каркас обеспечивает прочность и долговечность.Характеристики
- Общая площадь: 96 м2
- Количество этажей: 2
- Стиль, разновидность: Дома в стиле Модерн
- Форма: Прямоугольные дома
- Тип кровли: Дома с двускатной крышей
- Отделка: Без отделки
- Размер: 8x8







