Проект двухэтажного дома Карловы Вары
Дом подходит для:
Площадь
163 м 2
Размер дома:
10х11,5
Этажей:
2
Спален:
4
Санузел:
2
Гараж:
Нет
Баня:
Нет
Терраса:
Нет
Панорамные окна:
Нет
Мастер-спальня:
Нет
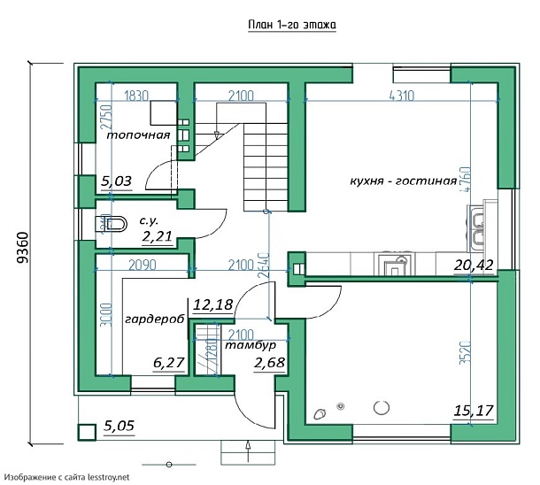
Планировка
Характеристики
- Общая площадь: 163 м2
- Жилая площадь: 134 м2
- Количество этажей: 2
- Гараж: нет
- Площадь кровли: 171 м2
- Отделка: Без отделки
- Фундамент: Дома с ленточным фундаментом
Материалы и перечень работ
- Высота основания 200мм, ширина под наружные стены 800мм, под внутренние 600мм
- Высота ростверка 500мм, ширина под наружные стены 400мм, под внутренние 300мм
- Бетон сертифицированный марки М300 (заводской)
- Каркас из арматуры: продольная - Ø12мм с загибом по углам; поперечная - Ø8мм
- Песчаная подушка 400мм с трамбовкой
- Внешние стены 380мм - керамический пустотелый кирпич 2.1 НФ (М150)
- Внутренние несущие 250мм - керамический полнотелый кирпич 1 НФ (М150)
- Армирование кладки через каждые три ряда
- Керамический кирпич монтируются на кладочный раствор
- Монтаж перемычек над оконными и дверными проемами
- Утепление базальтовым плитным утеплителем "Юматекс Термо Smart" в 200мм
- Стропила из доски 50х150/200мм (камерной сушки) с шагом не более 590мм
- Контр обрешётка из бруска 50х50мм (камерной сушки)
- Обрешетка из доски 25х150мм (камерной сушки) с шагом 350мм
- Металлочерепица -"InterProfil"
- В стоимость не входит
- В стоимость не входит
- В стоимость не входит
- Высота основания 200мм, ширина под наружные стены 800мм, под внутренние 600мм
- Высота ростверка 500мм, ширина под наружные стены 400мм, под внутренние 300мм
- Бетон сертифицированный марки М300 (заводской)
- Каркас из арматуры: продольная - Ø12мм с загибом по углам; поперечная - Ø8мм
- Песчаная подушка 400мм с трамбовкой
- Внешние стены 380мм - керамический пустотелый кирпич 2.1 НФ (М150)
- Внутренние несущие 250мм - керамический полнотелый кирпич 1 НФ (М150)
- Армирование кладки через каждые три ряда
- Керамический кирпич монтируются на кладочный раствор
- Монтаж перемычек над оконными и дверными проемами
- Утепление базальтовым плитным утеплителем "Юматекс Термо Smart" в 200мм
- Стропила из доски 50х150/200мм (камерной сушки) с шагом не более 590мм
- Контр обрешётка из бруска 50х50мм (камерной сушки)
- Обрешетка из доски 25х150мм (камерной сушки) с шагом 350мм
- Металлочерепица -"InterProfil"
- В стоимость не входит
- В стоимость не входит
- В стоимость не входит
Что еще входит в стоимость:
Отправьте свои контакты и мы расчитаем вам смету
Скорее всего вам подойдут следующие проекты домов:
Дом подходит для:
Дом подходит для:
Проект двухэтажного дома Д-136К
Для большой семьи
Дом подходит для:
Дом подходит для:













