Проект двухэтажного дома Проект дома АС-150
Площадь
150 м 2
Размер дома:
10x10
Этажей:
2
Спален:
4
Санузел:
0
Гараж:
Нет
Баня:
Нет
Терраса:
Нет
Панорамные окна:
Нет
Мастер-спальня:
Нет
О проекте
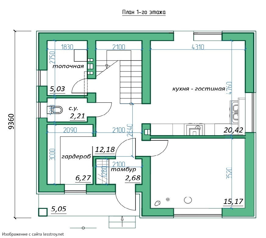
Элегантный дом с удобной планировкой, современным дизайном и уютной обстановкой, в котором царит гармония и комфорт для идеального проживания. Планировка в пределах 22 м² подойдёт многим. Крыша из ондулин подчёркивает современный облик дома. Это одноэтажная структура, которая разделяет приватные и общественные зоны. Выбор бруса обусловлен его теплоизоляционными свойствами.Характеристики
- Общая площадь: 150 м2
- Количество этажей: 2
- Стиль, разновидность: Дома в ином стиле
- Форма: Квадратные дома
- Тип кровли: Дома с многощипцовой крышей
- Отделка: Без отделки
- Размер: 10x10
Отправьте свои контакты и мы расчитаем вам смету
Скорее всего вам подойдут следующие проекты домов:
Дом подходит для:
Проект двухэтажного дома Карловы Вары
Для большой семьи
Дом подходит для:
Дом подходит для:
Проект двухэтажного дома Д-136К
Для большой семьи
Дом подходит для:
Дом подходит для:













