Проект двухэтажного дома КД 1
Площадь
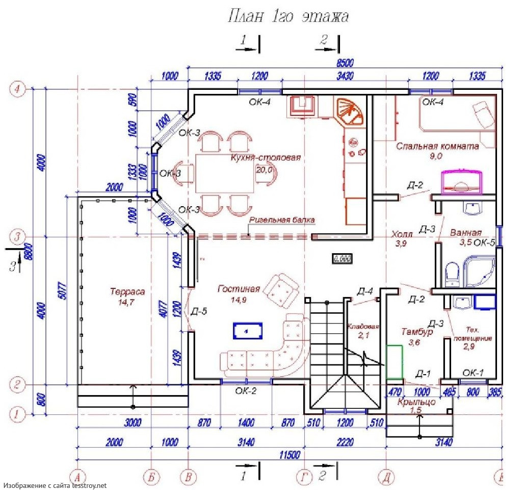
150 м 2
Размер дома:
Этажей:
2
Спален:
4
Санузел:
0
Гараж:
Нет
Баня:
Нет
Терраса:
Нет
Панорамные окна:
Нет
Мастер-спальня:
Нет
О проекте
Каркасный дом площадью 150 м² — это экономичное и практичное решение. Легкая конструкция не уступает по надежности более массивным аналогам. Просторные окна наполняют интерьер светом, создавая ощущение простора. Идеальный выбор для тех, кто ценит быстроту строительства и функциональность.Характеристики
- Общая площадь: 150 м2
- Количество этажей: 2
- Стиль, разновидность: Дома в стиле Шале
- Форма: Прямоугольные дома
- Тип кровли: Дома с мансардной крышей
- Отделка: Без отделки
Отправьте свои контакты и мы расчитаем вам смету
Скорее всего вам подойдут следующие проекты домов:
Дом подходит для:
Дом подходит для:
Дом подходит для:














