Проект одноэтажного дома КД-518
Дом подходит для:
Площадь
121 м 2
Размер дома:
11x11
Этажей:
1
Спален:
3
Санузел:
2
Гараж:
Нет
Баня:
Нет
Терраса:
Да
Панорамные окна:
Нет
Мастер-спальня:
Нет
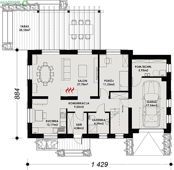
Планировка
Характеристики
- Общая площадь: 121 м2
- Жилая площадь: 100 м2
- Количество этажей: 1
- Гараж: нет
- Площадь кровли: 131 м2
- Форма: Квадратные дома
- Тип кровли: Дома с четырехскатной крышей (вальмовой)
- Пристрой: Дома с верандой
- Отделка: White box
- Отделка фасада: Дома с комбинированной отделкой
- Размер: 11x11
- Фундамент: Дома с плитным фундаментом
Материалы и перечень работ
- Монолитная утепленная железобетонная плита (250 мм — одноэтажные; 300 мм — двухэтажные и мансардные)
- Песчаная подушка 200 мм на геотекстильном основании
- Утепление фундамента под зданием и по периметру
- Бетон марки М300 (B22.5)
- Арматура Ø 6-12 мм
- Наружные стены — газобетонные блоки D500 Bonolit толщиной 400 мм
- Внутренние несущие стены — газобетонные блоки D500 Bonolit толщиной 250 мм
- Внутренние перегородки — газобетонные блоки D500 Bonolit толщиной 100 мм
- Межэтажное перекрытие — сборное из ж/б плит заводского изготовления
- Стропильная система — усиленная из бруса (50х150 — одноэтажные и двухэтажные; 50х200 — мансардные)
- Металлочерепица — GRAND LINE (покрытие Satin)/Т05 (покрытие полиэстер), цвет по выбору
- Окна — Rehau, двухкамерный стеклопакет (3 стекла)
- Двери — ПВХ (при наличии в проекте)
- Закладные для ввода в дом коммуникаций
- В стоимость не входит
- Монолитная утепленная железобетонная плита (250 мм — одноэтажные; 300 мм — двухэтажные и мансардные)
- Песчаная подушка 200 мм на геотекстильном основании
- Утепление фундамента под зданием и по периметру
- Бетон марки М300 (B22.5)
- Арматура Ø 6-12 мм
- Наружные стены — газобетонные блоки D500 Bonolit толщиной 400 мм
- Внутренние несущие стены — газобетонные блоки D500 Bonolit толщиной 250 мм
- Внутренние перегородки — газобетонные блоки D500 Bonolit толщиной 100 мм
- Межэтажное перекрытие — сборное из ж/б плит заводского изготовления
- Стропильная система — усиленная из бруса (50х150 — одноэтажные и двухэтажные; 50х200 — мансардные)
- Металлочерепица — GRAND LINE (покрытие Satin)/Т05 (покрытие полиэстер), цвет по выбору
- Окна — Rehau, двухкамерный стеклопакет (3 стекла)
- Двери — ПВХ (при наличии в проекте)
- Закладные для ввода в дом коммуникаций
- В стоимость не входит
Что еще входит в стоимость:
Отправьте свои контакты и мы расчитаем вам смету
Скорее всего вам подойдут следующие проекты домов:
Проект одноэтажного дома Гранд
Семья с одним ребенком
Дом подходит для:
Дом подходит для:
Проект одноэтажного дома Дом id-78476
Семья с двумя детьми
Дом подходит для:
Дом подходит для:
Проект одноэтажного дома Дом id-78479
Семья с двумя детьми
Дом подходит для:
Дом подходит для:























