Проект двухэтажного дома Конта
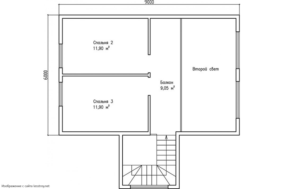
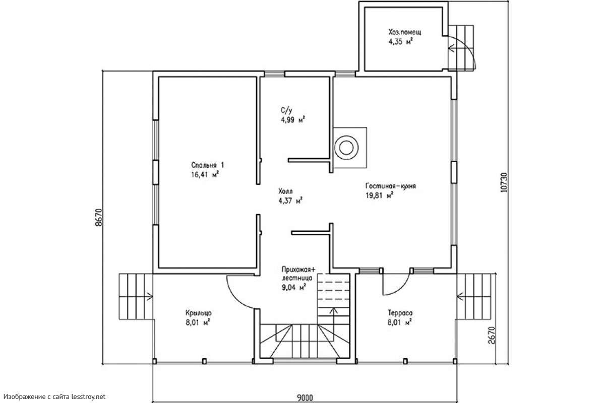
Площадь
130 м 2
Размер дома:
9x10
Этажей:
2
Спален:
3
Санузел:
0
Гараж:
Нет
Баня:
Нет
Терраса:
Нет
Панорамные окна:
Нет
Мастер-спальня:
Нет
О проекте
Проект, где практичность не убивает красоту 130 м² — дом, где всё работает на вас. Двухэтажная уютная планировка обеспечивает практичное распределение комнат. Крыша из битумная черепица подчёркивает современный облик дома. В доме предусмотрено 3 спальни, что важно для комфорта.Характеристики
- Общая площадь: 130 м2
- Количество этажей: 2
- Стиль, разновидность: Дома в стиле Кантри
- Форма: Прямоугольные дома
- Тип кровли: Дома с мансардной крышей
- Отделка: Без отделки
- Размер: 9x10
Отправьте свои контакты и мы расчитаем вам смету
Скорее всего вам подойдут следующие проекты домов:
Дом подходит для:
Дом подходит для:
Дом подходит для:












