Проект двухэтажного дома SIP 11
Площадь
126 м 2
Размер дома:
Этажей:
2
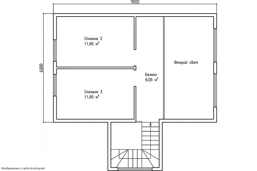
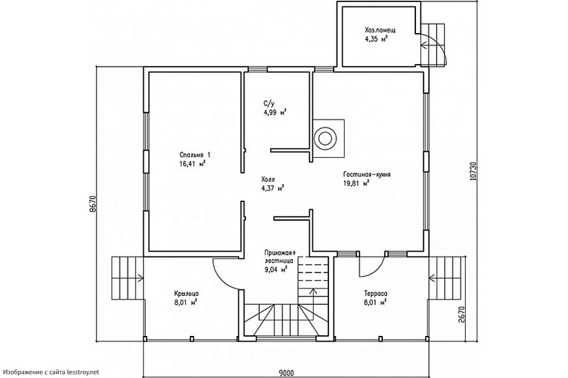
Спален:
3
Санузел:
0
Гараж:
Нет
Баня:
Нет
Терраса:
Нет
Панорамные окна:
Нет
Мастер-спальня:
Нет
О проекте
Пространство, в котором дизайнерские решения практичны Доступные 126 м² с разумным подходом к каждой зоне. Наличие 3 спальни удовлетворит запросы семьи с детьми. Дом спроектирован в духе дома в классическом стиле. Двухэтажная просторная планировка организует пространство максимально эффективно.Характеристики
- Общая площадь: 126 м2
- Количество этажей: 2
- Стиль, разновидность: Дома в ином стиле
- Форма: Квадратные дома
- Тип кровли: Дома с четырехскатной крышей (вальмовой)
- Отделка: Без отделки
Отправьте свои контакты и мы расчитаем вам смету
Скорее всего вам подойдут следующие проекты домов:
Дом подходит для:
Дом подходит для:
Дом подходит для:










