Проект одноэтажного дома Коттедж из клееного бруса Флигель-132 от компании МОГУТА
Площадь
132 м 2
Размер дома:
Этажей:
1
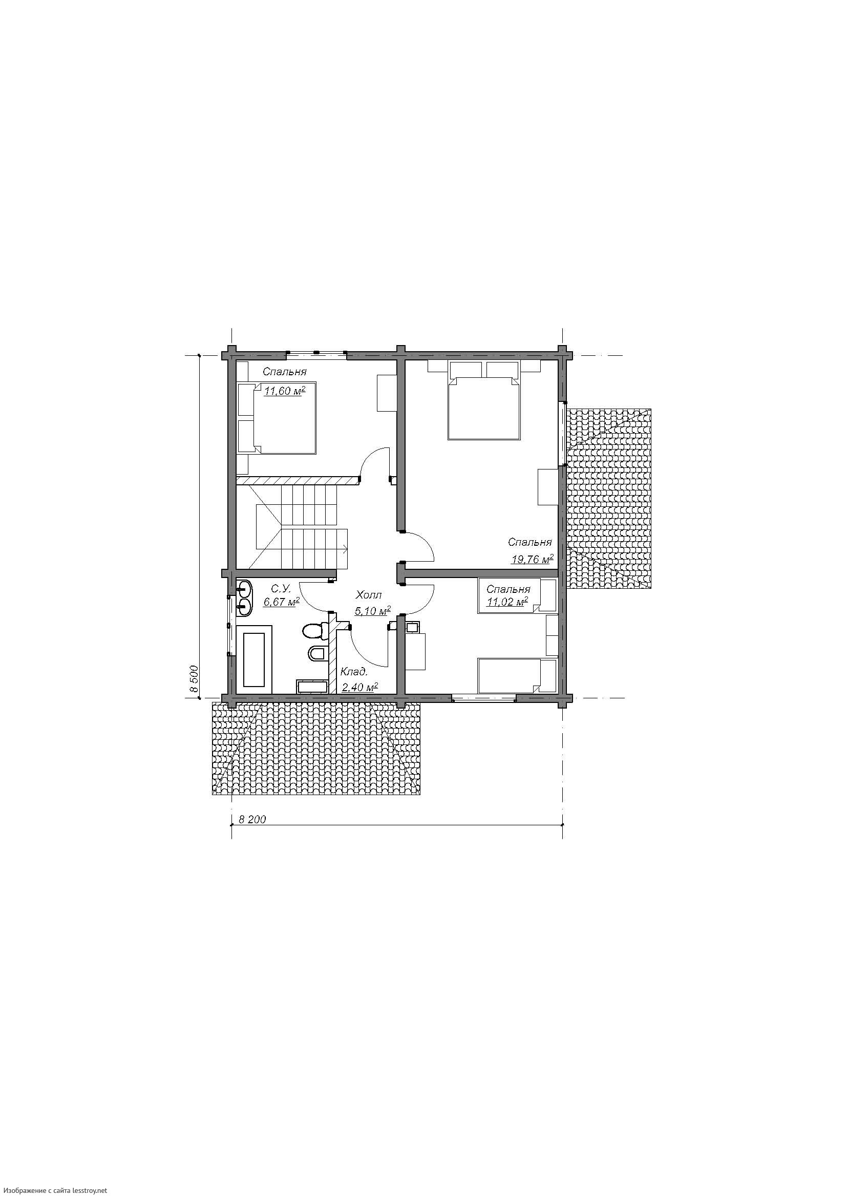
Спален:
4
Санузел:
0
Гараж:
Нет
Баня:
Нет
Терраса:
Нет
Панорамные окна:
Нет
Мастер-спальня:
Нет
О проекте
Архитектура, в которой эстетика не противоречит практичности. 283 м² — достаточная площадь для организации всех необходимых зон. Материал кровли — рубероид, что добавляет зданию индивидуальность. Архитектура выполнена в стиле финские дома. Это двухэтажная структура, которая разграничивает спальные и дневные помещения.Характеристики
- Общая площадь: 132 м2
- Количество этажей: 1
- Стиль, разновидность: Дома в стиле Прованс
- Форма: Прямоугольные дома
- Тип кровли: Дома с шатровой крышей
- Отделка: Без отделки
Отправьте свои контакты и мы расчитаем вам смету
Скорее всего вам подойдут следующие проекты домов:
Дом подходит для:
Дом подходит для:
Дом подходит для:












