Проект одноэтажного дома КД 2
Площадь
200 м 2
Размер дома:
Этажей:
1
Спален:
4
Санузел:
0
Гараж:
Нет
Баня:
Нет
Терраса:
Нет
Панорамные окна:
Нет
Мастер-спальня:
Нет
О проекте
Внутреннее пространство организовано максимально рационально.Дом объёмом 93 м² — пример грамотного проектирования. В доме предусмотрено 2 спальни, что важно для комфорта. Стены из бруса хорошо держат тепло и защищают от шума. Это двухэтажная структура, которая обеспечивает комфортную навигацию внутри дома.Характеристики
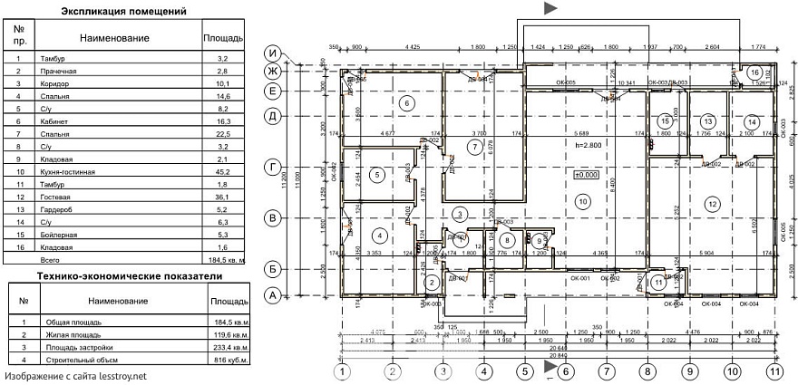
- Общая площадь: 200 м2
- Количество этажей: 1
- Стиль, разновидность: Дома в стиле Шале
- Форма: Прямоугольные дома
- Тип кровли: Дома с многощипцовой крышей
- Отделка: Без отделки
Отправьте свои контакты и мы расчитаем вам смету
Скорее всего вам подойдут следующие проекты домов:
Дом подходит для:
Дом подходит для:
Дом подходит для:










