Проект двухэтажной бани Лада 2
Дом подходит для:
Площадь
70 м 2
Размер дома:
6x9
Этажей:
2
Спален:
1
Санузел:
1
Гараж:
Нет
Баня:
Нет
Терраса:
Нет
Панорамные окна:
Нет
Мастер-спальня:
Нет
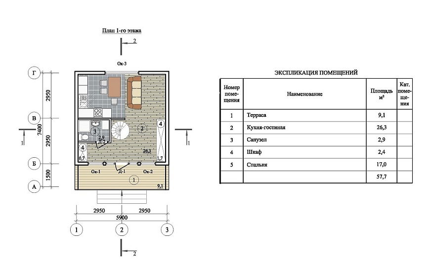
Планировка
Фасады
О проекте
Компактный дом Лада 2 площадью 70 м² с жилыми 54 м² — воплощение практичности и комфорта. Каркасные стены обеспечивают легкость, а профнастил на крыше добавляет надежности. Одна спальня и санузел делают его удобным для небольшой семьи. Свайный фундамент подчеркивает универсальность этого проекта.Характеристики
- Общая площадь: 69.74 м2
- Жилая площадь: 54 м2
- Количество этажей: 2
- Гараж: нет
- Площадь кровли: 74 м2
- Форма: Квадратные дома
- Тип кровли: Дома с двускатной крышей
- Отделка: Без отделки
- Отделка фасада: Дома с отделкой имитацией бруса
- Фундамент: Дома со свайным фундаментом
Материалы и перечень работ
- Свайный 2,5 м с ростверком из профилированной трубы 80х80 мм (ниже глубины промерзания)
- Стены: каркас 100 мм. Наружная и внутренняя отделка вагонкой 12,5 мм, утепление — 100 мм
- Утепление стен бани, пола и потолка в парной 100 мм, пластиковые окна с энергосберегающим стеклопакетом надежно сохранят тепло
- Полы:утепление 100 мм, доска пола 21 мм; обработка огнебиозащитой нижнего конструктива
- Перегородки:каркас 100 мм, отделка вагонкой 12,5 мм, в парной утепление 100 мм
- Потолок: утепление 50 мм, в парной — 100 мм, отделка вагонкой 12,5 мм
- Кровля: оцинкованный профнастил
- Окна:пластиковые, остекление стеклопакет.
- Двери:деревянные филенчатые
- В стоимость не входит
- В стоимость не входит
- Свайный 2,5 м с ростверком из профилированной трубы 80х80 мм (ниже глубины промерзания)
- Стены: каркас 100 мм. Наружная и внутренняя отделка вагонкой 12,5 мм, утепление — 100 мм
- Утепление стен бани, пола и потолка в парной 100 мм, пластиковые окна с энергосберегающим стеклопакетом надежно сохранят тепло
- Полы:утепление 100 мм, доска пола 21 мм; обработка огнебиозащитой нижнего конструктива
- Перегородки:каркас 100 мм, отделка вагонкой 12,5 мм, в парной утепление 100 мм
- Потолок: утепление 50 мм, в парной — 100 мм, отделка вагонкой 12,5 мм
- Кровля: оцинкованный профнастил
- Окна:пластиковые, остекление стеклопакет.
- Двери:деревянные филенчатые
- В стоимость не входит
- В стоимость не входит
Что еще входит в стоимость:
Отправьте свои контакты и мы расчитаем вам смету
Скорее всего вам подойдут следующие проекты домов:
Дом подходит для:
Дом подходит для:
Дом подходит для:











