Проект двухэтажного дома Мирный
Площадь
69 м 2
Размер дома:
6x6
Этажей:
2
Спален:
2
Санузел:
0
Гараж:
Нет
Баня:
Нет
Терраса:
Нет
Панорамные окна:
Нет
Мастер-спальня:
Нет
О проекте
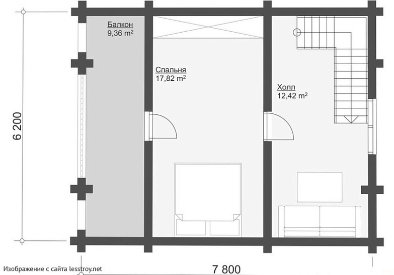
Двухэтажный дом площадью 69 м² из рубленного бревна — это уютное и компактное жилье. Натуральные материалы создают теплую атмосферу и экологичность. Просторные комнаты делают проект удобным для небольшой семьи. Отличный выбор для загородного отдыха.Характеристики
- Общая площадь: 69 м2
- Количество этажей: 2
- Стиль, разновидность: Дома в ином стиле
- Форма: Квадратные дома
- Тип кровли: Дома с двускатной крышей
- Отделка: Без отделки
- Размер: 6x6
Отправьте свои контакты и мы расчитаем вам смету
Скорее всего вам подойдут следующие проекты домов:
Дом подходит для:
Дом подходит для:
Дом подходит для:












