Проект одноэтажного дома Одноэтажный дом из бруса 9х9 ДБ-4
Площадь
92 м 2
Размер дома:
9x9
Этажей:
1
Спален:
2
Санузел:
0
Гараж:
Нет
Баня:
Нет
Терраса:
Нет
Панорамные окна:
Нет
Мастер-спальня:
Нет
О проекте
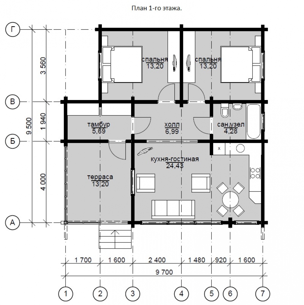
Пространство организовано для поддержания порядка и чистоты. 209 м² жилой площади — основа удобства и стиля. Материал кровли — металлочерепица, что добавляет зданию индивидуальность. Дом спроектирован в духе дома в классическом стиле. Бруса делает дом надёжным при любой погоде.Характеристики
- Общая площадь: 92 м2
- Количество этажей: 1
- Стиль, разновидность: Дома в ином стиле
- Форма: Прямоугольные дома
- Тип кровли: Дома с двускатной крышей
- Отделка: Без отделки
- Размер: 9x9
Отправьте свои контакты и мы расчитаем вам смету
Скорее всего вам подойдут следующие проекты домов:
Дом подходит для:
Дом подходит для:
Дом подходит для:






