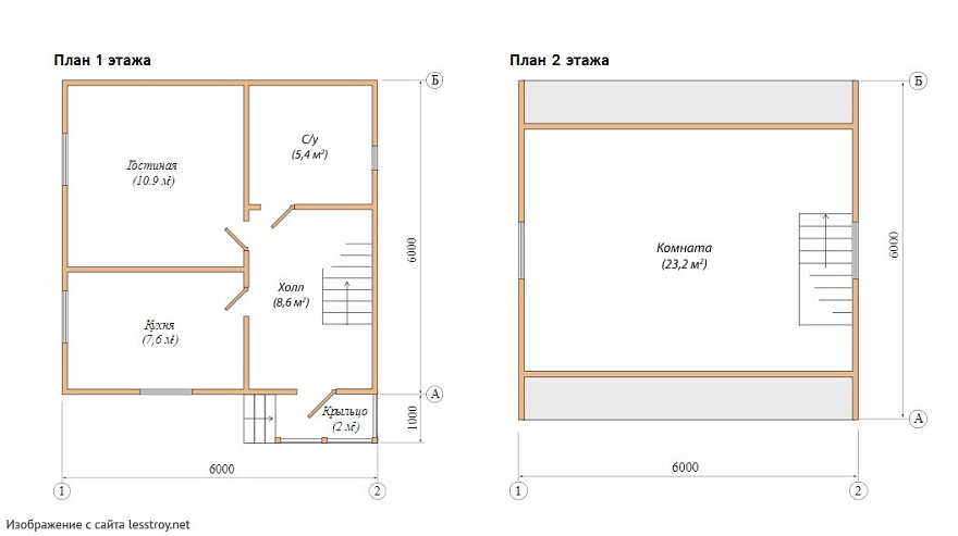
Проект двухэтажного дома ПАХРА
Площадь
57 м 2
Размер дома:
6x6
Этажей:
2
Спален:
1
Санузел:
0
Гараж:
Нет
Баня:
Нет
Терраса:
Нет
Панорамные окна:
Нет
Мастер-спальня:
Нет
О проекте
Двухэтажный каркасный дом площадью 57 м² в русском стиле — это традиции и комфорт. Одна спальня и металлочерепица создают уютное пространство.Характеристики
- Общая площадь: 57 м2
- Количество этажей: 2
- Стиль, разновидность: Дома в стиле Русский
- Форма: Квадратные дома
- Тип кровли: Дома с двускатной крышей
- Отделка: Без отделки
- Размер: 6x6












