Проект одноэтажного дома Пегас-К43
Площадь
80 м 2
Размер дома:
Этажей:
1
Спален:
2
Санузел:
0
Гараж:
Нет
Баня:
Нет
Терраса:
Нет
Панорамные окна:
Нет
Мастер-спальня:
Нет
О проекте
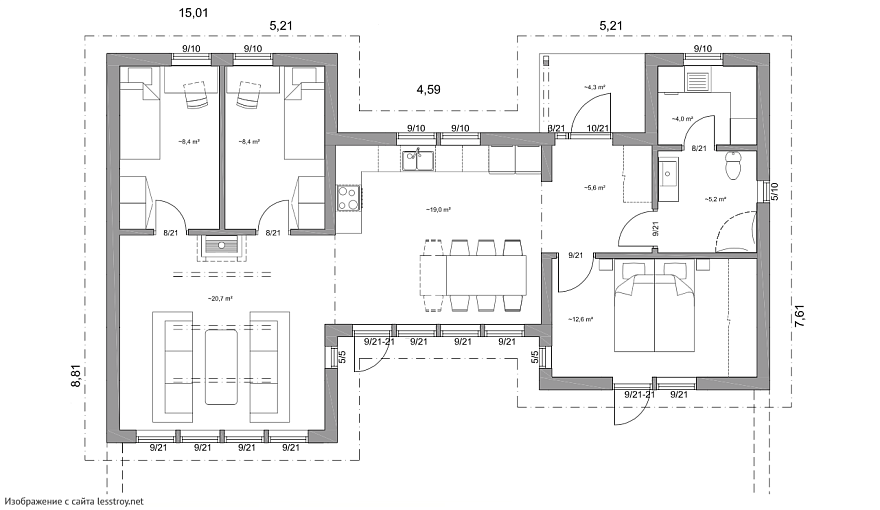
Пространство, в котором двери не мешают расстановке мебелиДом продуман на 80 м² до последнего сантиметра. В качестве кровли использована металлочерепица — материал, проверенный временем. Архитектура выполнена в стиле дома в классическом стиле. Наличие 2 спальни удовлетворит запросы семьи с детьми.Характеристики
- Общая площадь: 80 м2
- Количество этажей: 1
- Стиль, разновидность: Дома в ином стиле
- Форма: Прямоугольные дома
- Тип кровли: Дома с двускатной крышей
- Отделка: Без отделки
Отправьте свои контакты и мы расчитаем вам смету
Скорее всего вам подойдут следующие проекты домов:
Дом подходит для:
Дом подходит для:
Дом подходит для:










