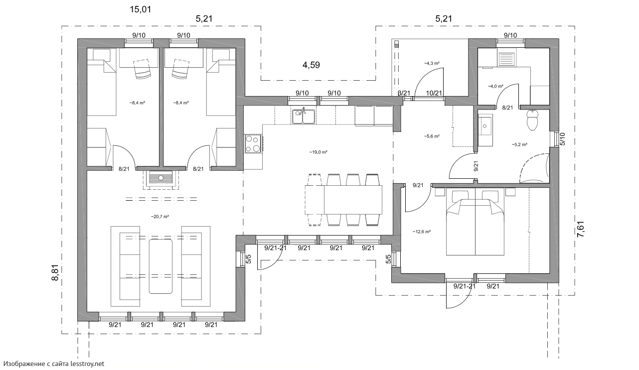
Проект одноэтажного дома TOR-1
Площадь
88 м 2
Размер дома:
Этажей:
1
Спален:
3
Санузел:
0
Гараж:
Нет
Баня:
Нет
Терраса:
Нет
Панорамные окна:
Нет
Мастер-спальня:
Нет
О проекте
Пространство, где можно почувствовать себя счастливым. Жить в 88 м² — это удобно, красиво и рационально. Одноэтажная грамотная планировка обеспечивает комфортную навигацию внутри дома. В качестве кровли использована металлочерепица — материал, проверенный временем. Конструкция из Каркас обеспечивает прочность и долговечность.Характеристики
- Общая площадь: 88 м2
- Количество этажей: 1
- Стиль, разновидность: Финские дома
- Форма: Т-образные дома
- Тип кровли: Дома с двускатной крышей
- Отделка: Без отделки
Отправьте свои контакты и мы расчитаем вам смету
Скорее всего вам подойдут следующие проекты домов:
Дом подходит для:
Дом подходит для:
Дом подходит для:









