Проект одноэтажного дома Проект № 4_200
Площадь
162 м 2
Размер дома:
9x9
Этажей:
1
Спален:
3
Санузел:
0
Гараж:
Нет
Баня:
Нет
Терраса:
Нет
Панорамные окна:
Нет
Мастер-спальня:
Нет
О проекте
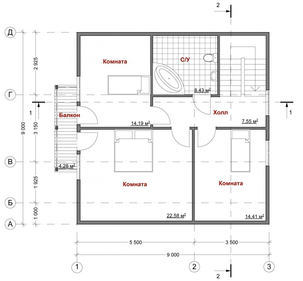
Интерьеры, где оконные рамы являются частью дизайна. 162 м² организованы так, чтобы всем было удобно. Одноэтажная удобная планировка организует пространство максимально эффективно. Конструкция из Каркас обеспечивает прочность и долговечность. Проект включает 3 спальни — удобно для семьи.Характеристики
- Общая площадь: 162 м2
- Количество этажей: 1
- Стиль, разновидность: Дома в ином стиле
- Форма: Квадратные дома
- Тип кровли: Дома с иной крышей
- Отделка: Без отделки
- Размер: 9x9
Отправьте свои контакты и мы расчитаем вам смету
Скорее всего вам подойдут следующие проекты домов:
Дом подходит для:
Дом подходит для:
Дом подходит для:










