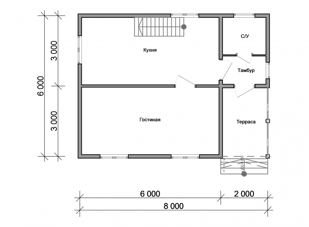
Проект двухэтажного дома Проект дома из бруса 6 х 8 м «Парковый»
Площадь
67 м 2
Размер дома:
6x8
Этажей:
2
Спален:
1
Санузел:
0
Гараж:
Нет
Баня:
Нет
Терраса:
Нет
Панорамные окна:
Нет
Мастер-спальня:
Нет
О проекте
Пространство продумано так, чтобы минимизировать беспорядок и хаос. Комфортное пространство в 153 м² подойдёт для любой семьи. Дом спроектирован в духе дома в классическом стиле. Конструкция из бруса обеспечивает прочность и долговечность. Двухэтажная рациональная планировка обеспечивает практичное распределение комнат.Характеристики
- Общая площадь: 67 м2
- Количество этажей: 2
- Стиль, разновидность: Дома в ином стиле
- Форма: Прямоугольные дома
- Тип кровли: Дома с шатровой крышей
- Отделка: Без отделки
- Размер: 6x8







