Проект двухэтажного дома Проект дома из бруса с гаражем 9.3х12.8 м «Лабинск»
Площадь
186 м 2
Размер дома:
9x12
Этажей:
2
Спален:
3
Санузел:
0
Гараж:
Нет
Баня:
Нет
Терраса:
Нет
Панорамные окна:
Нет
Мастер-спальня:
Нет
О проекте
Архитектура здания делает его уютным и welcoming.67 м² — это возможность разделить пространство на зоны по интересам. Рубероид придаёт дому выразительность и надёжность. Проект включает 1 спальня — удобно для семьи. Архитектура выполнена в стиле дома в классическом стиле.Характеристики
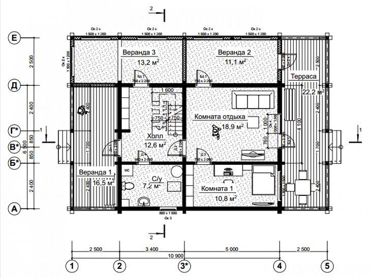
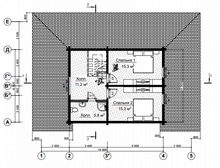
- Общая площадь: 186 м2
- Количество этажей: 2
- Стиль, разновидность: Дома в стиле Модерн
- Форма: Прямоугольные дома
- Тип кровли: Дома с двускатной крышей
- Отделка: Без отделки
- Размер: 9x12














