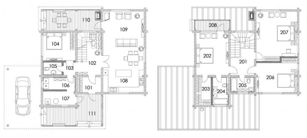
Проект двухэтажного дома Проект дома из клееного бруса CKD-254
Площадь
254 м 2
Размер дома:
11x12
Этажей:
2
Спален:
3
Санузел:
0
Гараж:
Нет
Баня:
Нет
Терраса:
Нет
Панорамные окна:
Нет
Мастер-спальня:
Нет
О проекте
Дом становится мостом между урбанистикой и деревенским уютом.100 м² — отличная база для воплощения дизайнерских идей. Стены из бруса хорошо держат тепло и защищают от шума. Наличие 2 спальни удовлетворит запросы семьи с детьми. Архитектура выполнена в стиле дома в классическом стиле.Характеристики
- Общая площадь: 254 м2
- Количество этажей: 2
- Стиль, разновидность: Дома в ином стиле
- Форма: Прямоугольные дома
- Тип кровли: Дома с односкатной крышей
- Отделка: Без отделки
- Размер: 11x12
Отправьте свои контакты и мы расчитаем вам смету
Скорее всего вам подойдут следующие проекты домов:
Дом подходит для:
Дом подходит для:
Дом подходит для:












