Проект двухэтажного дома Проект дома из клееного бруса CKD-280
Площадь
280 м 2
Размер дома:
11x13
Этажей:
2
Спален:
2
Санузел:
0
Гараж:
Нет
Баня:
Нет
Терраса:
Нет
Панорамные окна:
Нет
Мастер-спальня:
Нет
О проекте
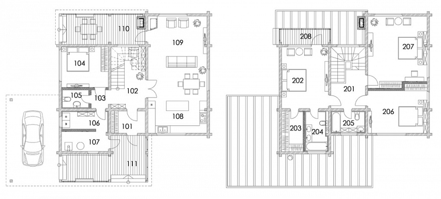
Пространство, где новаторские решения создают идеальные условия для семейных традиций.Интерьер выстраивается вокруг 130 м² уюта и свободы. Наличие 2 спальни удовлетворит запросы семьи с детьми. металлочерепица придаёт дому выразительность и надёжность. Одноэтажная просторная планировка создаёт идеальные условия для жизни всей семьи.Характеристики
- Общая площадь: 280 м2
- Количество этажей: 2
- Стиль, разновидность: Дома в ином стиле
- Форма: Прямоугольные дома
- Тип кровли: Дома с шатровой крышей
- Отделка: Без отделки
- Размер: 11x13
Отправьте свои контакты и мы расчитаем вам смету
Скорее всего вам подойдут следующие проекты домов:
Дом подходит для:
Дом подходит для:
Проект двухэтажного дома Проект дома из клееного бруса CKD-254
Семья с двумя детьми
Дом подходит для:
Дом подходит для:














