Проект одноэтажного дома Салем
Дом подходит для:
Площадь
96 м 2
Размер дома:
11x11
Этажей:
1
Спален:
2
Санузел:
1
Гараж:
Нет
Баня:
Нет
Терраса:
Нет
Панорамные окна:
Нет
Мастер-спальня:
Нет
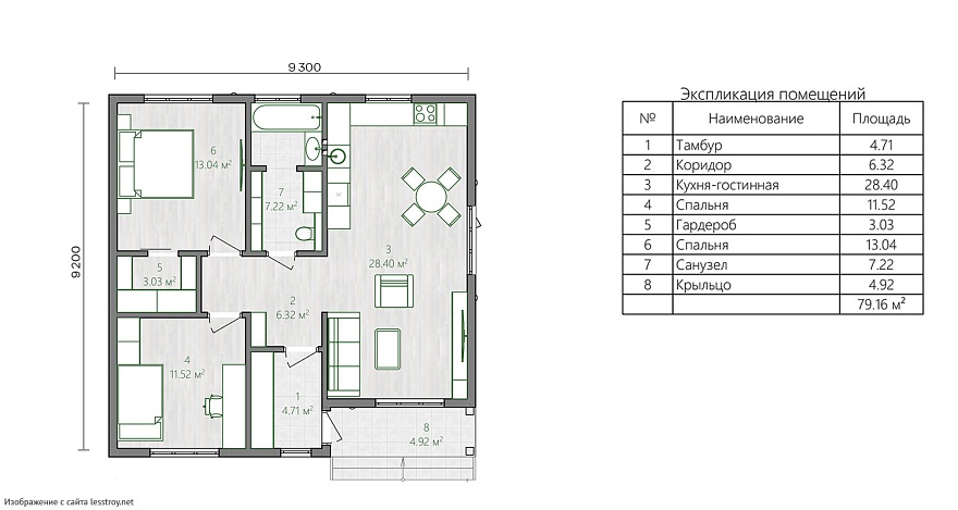
Планировка
Фасады
О проекте
Компактный и уютный дом площадью 96 м² с жилой зоной 73 м² идеально подходит для семьи. Каркасные стены обеспечивают тепло и энергоэффективность, а продуманная планировка делает пространство удобным. Светлые комнаты наполнены воздухом, создавая атмосферу домашнего тепла. Здесь каждый метр продуман для комфортной жизни.Характеристики
- Общая площадь: 96 м2
- Жилая площадь: 73 м2
- Количество этажей: 1
- Гараж: нет
- Площадь кровли: 101 м2
- Отделка: Без отделки
- Размер: 11x11
- Фундамент: Дома со свайным фундаментом
Материалы и перечень работ
- Фундамент на Железобетонных забивных сваях. Монтаж сваебойной установкой в проектный уровень, монтаж оголовка 250х250 мм.
- Сечение сваи 150*150 мм, длина 3 м.
- Брус обвязки фундамента 200*200 мм ,обработанный огне-био защитой
- Стены наружные: СИП панель RUPAN 174мм, OSB-3 толщина 12 мм.
- Внутренние перегородки Перегородки - каркасные из строганной, обработанной огнебиозащитой доски, 50х150 мм/ 50х100 мм
- Материал покрытия кровли Гибкая черепица Шинглас, Или Металлочерепица, Grand Line Classic Satin 0,5 мм толщиной.
- Исполнение обрешетки Контр обрешетка брусок 50х50 мм, обрешетка доска 25х100 мм., мембрана./ + ОСБ-3 12 мм (под гибкую черепицу)
- Холодная стропильная система при наличии чердачного перекрытия из SIP либо SIP панель RUPAN 174/224 мм. при мансардном исполнении.
- ПВХ –VEKA SOFTLINE, 5-х камерный профиль, двухкамерный стеклопакет с энергосберегающим стеклом + оконные отливы шириной до 150 мм, подоконники шириной до 250 мм, противомоскитные сетки белого цвета
- В стоимость не входит
- В стоимость не входит
- Фундамент на Железобетонных забивных сваях. Монтаж сваебойной установкой в проектный уровень, монтаж оголовка 250х250 мм.
- Сечение сваи 150*150 мм, длина 3 м.
- Брус обвязки фундамента 200*200 мм ,обработанный огне-био защитой
- Стены наружные: СИП панель RUPAN 174мм, OSB-3 толщина 12 мм.
- Внутренние перегородки Перегородки - каркасные из строганной, обработанной огнебиозащитой доски, 50х150 мм/ 50х100 мм
- Материал покрытия кровли Гибкая черепица Шинглас, Или Металлочерепица, Grand Line Classic Satin 0,5 мм толщиной.
- Исполнение обрешетки Контр обрешетка брусок 50х50 мм, обрешетка доска 25х100 мм., мембрана./ + ОСБ-3 12 мм (под гибкую черепицу)
- Холодная стропильная система при наличии чердачного перекрытия из SIP либо SIP панель RUPAN 174/224 мм. при мансардном исполнении.
- ПВХ –VEKA SOFTLINE, 5-х камерный профиль, двухкамерный стеклопакет с энергосберегающим стеклом + оконные отливы шириной до 150 мм, подоконники шириной до 250 мм, противомоскитные сетки белого цвета
- В стоимость не входит
- В стоимость не входит
Что еще входит в стоимость:
Отправьте свои контакты и мы расчитаем вам смету
Скорее всего вам подойдут следующие проекты домов:
Дом подходит для:
Дом подходит для:
Дом подходит для:










