Проект одноэтажного дома СДП-05
Площадь
140 м 2
Размер дома:
9x14
Этажей:
1
Спален:
1
Санузел:
0
Гараж:
Нет
Баня:
Нет
Терраса:
Нет
Панорамные окна:
Нет
Мастер-спальня:
Нет
О проекте
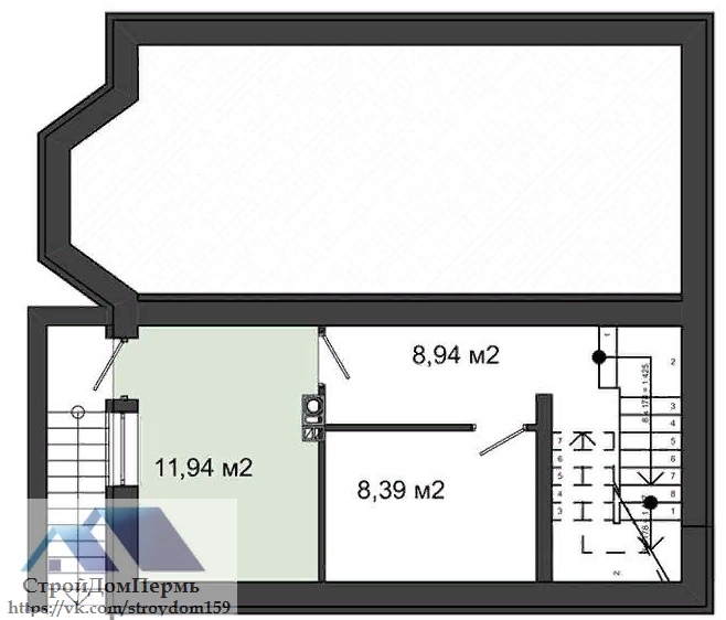
Пространство, где можно забыть о времени и просто наслаждаться моментом. 140 м² жилой площади — основа удобства и стиля. Одноэтажная современная планировка организует пространство максимально эффективно. В качестве кровли использована ондулин — материал, проверенный временем. Архитектура выполнена в стиле дома в стиле шале.Характеристики
- Общая площадь: 140 м2
- Количество этажей: 1
- Стиль, разновидность: Дома в стиле Шале
- Форма: Квадратные дома
- Тип кровли: Дома с шатровой крышей
- Отделка: Без отделки
- Размер: 9x14
Отправьте свои контакты и мы расчитаем вам смету
Скорее всего вам подойдут следующие проекты домов:
Дом подходит для:
Дом подходит для:
Проект одноэтажного дома Усадебный дом
Семья с одним ребенком
Дом подходит для:
Дом подходит для:










