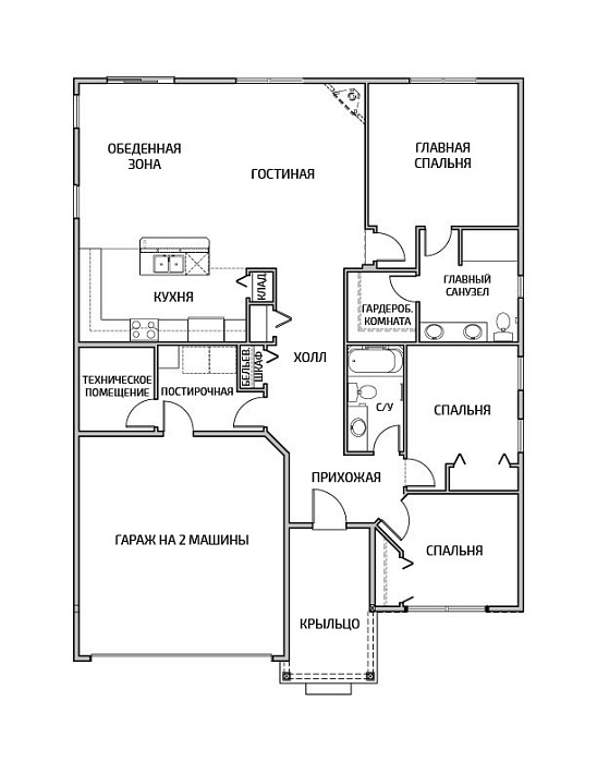
Проект одноэтажного дома Симпл
Площадь
190 м 2
Размер дома:
14x17
Этажей:
1
Спален:
3
Санузел:
0
Гараж:
Нет
Баня:
Нет
Терраса:
Нет
Панорамные окна:
Нет
Мастер-спальня:
Нет
О проекте
Дом выглядит гармонично в любом ландшафте благодаря универсальному дизайну. Доступные 186 м² с разумным подходом к каждой зоне. Конструкция из бруса обеспечивает прочность и долговечность. Это двухэтажная структура, которая создаёт идеальные условия для жизни всей семьи. Крыша из рубероид подчёркивает современный облик дома.Характеристики
- Общая площадь: 190 м2
- Количество этажей: 1
- Стиль, разновидность: Дома в стиле Модерн
- Форма: Прямоугольные дома
- Тип кровли: Дома с плоской крышей
- Отделка: Без отделки
- Размер: 14x17
Отправьте свои контакты и мы расчитаем вам смету
Скорее всего вам подойдут следующие проекты домов:
Дом подходит для:
Дом подходит для:
Дом подходит для:












