Проект одноэтажного дома СК-1
Дом подходит для:
Площадь
122 м 2
Размер дома:
13,7х11
Этажей:
1
Спален:
3
Санузел:
1
Гараж:
Нет
Баня:
Нет
Терраса:
Нет
Панорамные окна:
Нет
Мастер-спальня:
Нет
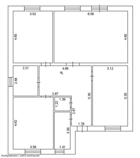
Планировка
Фасады
О проекте
Дом СК-1 площадью 122 м² с жилыми 70 м² — это надежность и стиль. Кирпичные стены наполняют интерьер теплом, а металлочерепица на крыше обеспечивает защиту. Три спальни и санузел создают комфорт для небольшой семьи. Монолитная железобетонная плита добавляет устойчивости этому жилью.Характеристики
- Общая площадь: 122 м2
- Жилая площадь: 70 м2
- Количество этажей: 1
- Гараж: нет
- Высота дома: 4.28 м
- Площадь кровли: 126 м2
- Отделка: С инженерными коммуникациями
- Фундамент: Дома с плитным фундаментом
Материалы и перечень работ
- Монолитная железобетонная плита 250 мм
- Работы включают: снятие плодородного слоя, использование геотекстиля в качестве разделяющего слоя (предотвратит смешивание и заиливание песка), создание песчаной подушки с послойным трамбованием, термоизоляцию фундамента и грунта под зданием.
- Используется сертифицированный бетон В25 (М350)
- В железобетонной плите фундамента устраиваются закладные для ввода в дом коммуникаций: электричества, водоснабжения и канализации.
- Стены строятся из керамических блоков POROTHERM, которые обладают отличными теплотехническими свойствами и создают комфортный микроклимат в доме.
- Теплая кладочная смесь Porotherm TM разработана специально для кладки керамических блоков Porotherm с целью снижения потерь тепла через растворные швы. При строительстве в зимнее время используется Porotherm TM Winter
- Несущие колонны выполняются из полнотелого кирпича.
- По запросу заказчика каждый 3 дня предоставляется фотоотчет о процессе строительство (опционально видеоотчет).
- Покрытие кровли - металлочерепица Grandline с полимерным покрытием Satin (толщина полимерного покрытия - 25 мкм, толщина металла - 0,5 мм, защитный слой Zn 140 г/кв.м.)
- Утеплеине 250 мм - негорючие, гидрофобизированные, легкие теплоизоляционные плиты из каменной ваты на основе базальтовых пород от финского производителя Paroc, изготовляемые по требованиям ЕС.
- Гидро-ветрозащитная мембрана Tyvek
- Пароизоляционная пленка Delta Reflex
- Водосточная система Aquasystem
- Трубчатая система снегозадержания
- Контроль качества работ в 3 этапа: стропильная система и пароизоляционная пленка; утепление; финишное покрытие, водосточная система.
- Окна: пятикамерный профиль Rehau толщиной 70 мм, противовзломные ручки, высококачественный уплотнитель, фурнитура Siegenia, Roto, Maco (Германия).
- Стеклопакеты энергосберегающие многофункциональные.
- Металлическая входная дверь с двумя контурами уплотнения и сейфовым замком.
- Электроснабжение: монтаж электрики по лучевой схеме: все кабельные линии коммутируются в одном месте — электрическом щите, подбор защитной автоматики по европейским стандартам, проведение ТО систем электроснабжения.
- Водоснабжение и отопление: разводка труб скрытым способом без сверления балок, лаг и иных конструкций, применение сшитого полиэтилена европейского производства и латунных фитингов при монтаже систем, пусконаладка системы отопления после завершения монтажных работ
- Монтаж приточно-вытяжной вентиляции с системой рекуперации, применения воздуховодов из нержавеющей стали для газовой вентиляции.
- По желанию заказчика возможно выполнение внутренней отделки.
- Монолитная железобетонная плита 250 мм
- Работы включают: снятие плодородного слоя, использование геотекстиля в качестве разделяющего слоя (предотвратит смешивание и заиливание песка), создание песчаной подушки с послойным трамбованием, термоизоляцию фундамента и грунта под зданием.
- Используется сертифицированный бетон В25 (М350)
- В железобетонной плите фундамента устраиваются закладные для ввода в дом коммуникаций: электричества, водоснабжения и канализации.
- Стены строятся из керамических блоков POROTHERM, которые обладают отличными теплотехническими свойствами и создают комфортный микроклимат в доме.
- Теплая кладочная смесь Porotherm TM разработана специально для кладки керамических блоков Porotherm с целью снижения потерь тепла через растворные швы. При строительстве в зимнее время используется Porotherm TM Winter
- Несущие колонны выполняются из полнотелого кирпича.
- По запросу заказчика каждый 3 дня предоставляется фотоотчет о процессе строительство (опционально видеоотчет).
- Покрытие кровли - металлочерепица Grandline с полимерным покрытием Satin (толщина полимерного покрытия - 25 мкм, толщина металла - 0,5 мм, защитный слой Zn 140 г/кв.м.)
- Утеплеине 250 мм - негорючие, гидрофобизированные, легкие теплоизоляционные плиты из каменной ваты на основе базальтовых пород от финского производителя Paroc, изготовляемые по требованиям ЕС.
- Гидро-ветрозащитная мембрана Tyvek
- Пароизоляционная пленка Delta Reflex
- Водосточная система Aquasystem
- Трубчатая система снегозадержания
- Контроль качества работ в 3 этапа: стропильная система и пароизоляционная пленка; утепление; финишное покрытие, водосточная система.
- Окна: пятикамерный профиль Rehau толщиной 70 мм, противовзломные ручки, высококачественный уплотнитель, фурнитура Siegenia, Roto, Maco (Германия).
- Стеклопакеты энергосберегающие многофункциональные.
- Металлическая входная дверь с двумя контурами уплотнения и сейфовым замком.
- Электроснабжение: монтаж электрики по лучевой схеме: все кабельные линии коммутируются в одном месте — электрическом щите, подбор защитной автоматики по европейским стандартам, проведение ТО систем электроснабжения.
- Водоснабжение и отопление: разводка труб скрытым способом без сверления балок, лаг и иных конструкций, применение сшитого полиэтилена европейского производства и латунных фитингов при монтаже систем, пусконаладка системы отопления после завершения монтажных работ
- Монтаж приточно-вытяжной вентиляции с системой рекуперации, применения воздуховодов из нержавеющей стали для газовой вентиляции.
- По желанию заказчика возможно выполнение внутренней отделки.
Что еще входит в стоимость:
Отправьте свои контакты и мы расчитаем вам смету
Скорее всего вам подойдут следующие проекты домов:
Дом подходит для:
Проект одноэтажного дома Зеленые дали
Семья с одним ребенком
Дом подходит для:
Дом подходит для:
Проект одноэтажного дома Ветеран
Семья с двумя детьми
Дом подходит для:
Дом подходит для:










