Проект двухэтажного дома Спарта
Площадь
230 м 2
Размер дома:
Этажей:
2
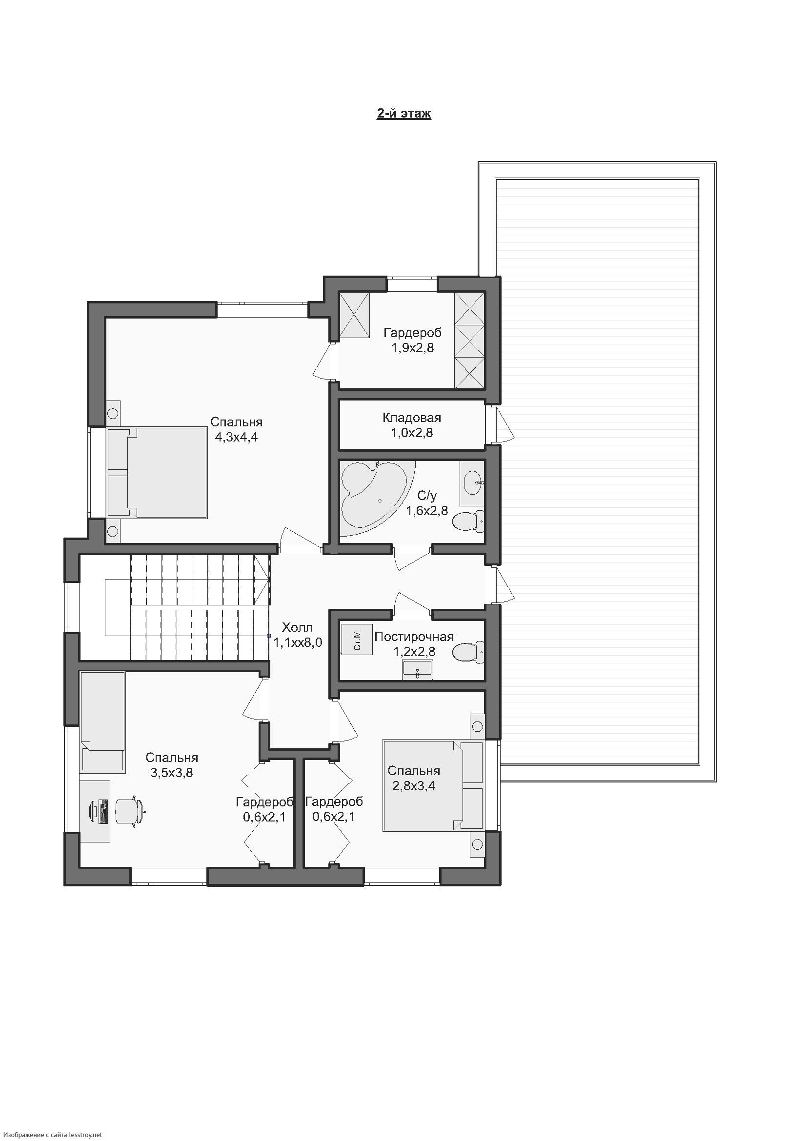
Спален:
4
Санузел:
0
Гараж:
Нет
Баня:
Нет
Терраса:
Нет
Панорамные окна:
Нет
Мастер-спальня:
Нет
О проекте
Проект нарисовал дом чернилами современности, раскрасив красками жизни. Рационально распределённые 176 м² делают жильё удобным. металлочерепица придаёт дому выразительность и надёжность. Выбор каркаса обусловлен его теплоизоляционными свойствами. Количество спален — 3, делая планировку гибкой.Характеристики
- Общая площадь: 230 м2
- Количество этажей: 2
- Стиль, разновидность: Дома в стиле Хай тек
- Форма: Прямоугольные дома
- Тип кровли: Дома с иной крышей
- Отделка: Без отделки
Отправьте свои контакты и мы расчитаем вам смету
Скорее всего вам подойдут следующие проекты домов:
Дом подходит для:
Дом подходит для:
Дом подходит для:










