Проект двухэтажного дома Тип 19-КБ
Площадь
258 м 2
Размер дома:
Этажей:
2
Спален:
4
Санузел:
0
Гараж:
Нет
Баня:
Нет
Терраса:
Нет
Панорамные окна:
Нет
Мастер-спальня:
Нет
О проекте
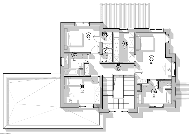
Вы почувствуете, как каждая деталь работает на ваш уют.145 м² — это идеальное сочетание функциональности и уюта. Дом спроектирован в духе дома в классическом стиле. Это одноэтажная структура, которая разделяет приватные и общественные зоны. Бревна делает дом надёжным при любой погоде.Характеристики
- Общая площадь: 258 м2
- Количество этажей: 2
- Стиль, разновидность: Дома в ином стиле
- Форма: Прямоугольные дома
- Тип кровли: Дома с многощипцовой крышей
- Отделка: Без отделки
Отправьте свои контакты и мы расчитаем вам смету
Скорее всего вам подойдут следующие проекты домов:
Дом подходит для:
Дом подходит для:
Дом подходит для:














