Проект двухэтажного дома Вяземские сады 2
Площадь
176 м 2
Размер дома:
9x9
Этажей:
2
Спален:
3
Санузел:
0
Гараж:
Нет
Баня:
Нет
Терраса:
Нет
Панорамные окна:
Нет
Мастер-спальня:
Нет
О проекте
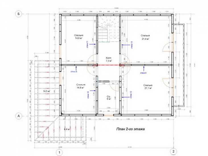
Дом, где хорошо в любую погоду и при любом настроении. Эргономичное пространство на 176 м² радует глаз и душу. Двухэтажная уютная планировка разделяет приватные и общественные зоны. Выбор Каркас обусловлен его теплоизоляционными свойствами. Наличие 3 спальни удовлетворит запросы семьи с детьми.Характеристики
- Общая площадь: 176 м2
- Количество этажей: 2
- Стиль, разновидность: Дома в ином стиле
- Форма: Прямоугольные дома
- Тип кровли: Дома с четырехскатной крышей (вальмовой)
- Отделка: Без отделки
- Размер: 9x9
Отправьте свои контакты и мы расчитаем вам смету
Скорее всего вам подойдут следующие проекты домов:
Дом подходит для:
Дом подходит для:
Проект двухэтажного дома Дом из СИП-панелей ЛЕГЕНДА 154 м.кв.
Семья с двумя детьми
Дом подходит для:
Дом подходит для:














