Проект двухэтажного дома Загородный дом из клееного бруса 138 кв.м.
Площадь
138 м 2
Размер дома:
8x12
Этажей:
2
Спален:
4
Санузел:
0
Гараж:
Нет
Баня:
Нет
Терраса:
Нет
Панорамные окна:
Нет
Мастер-спальня:
Нет
О проекте
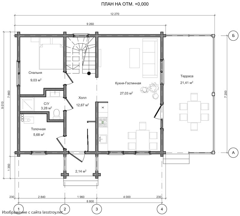
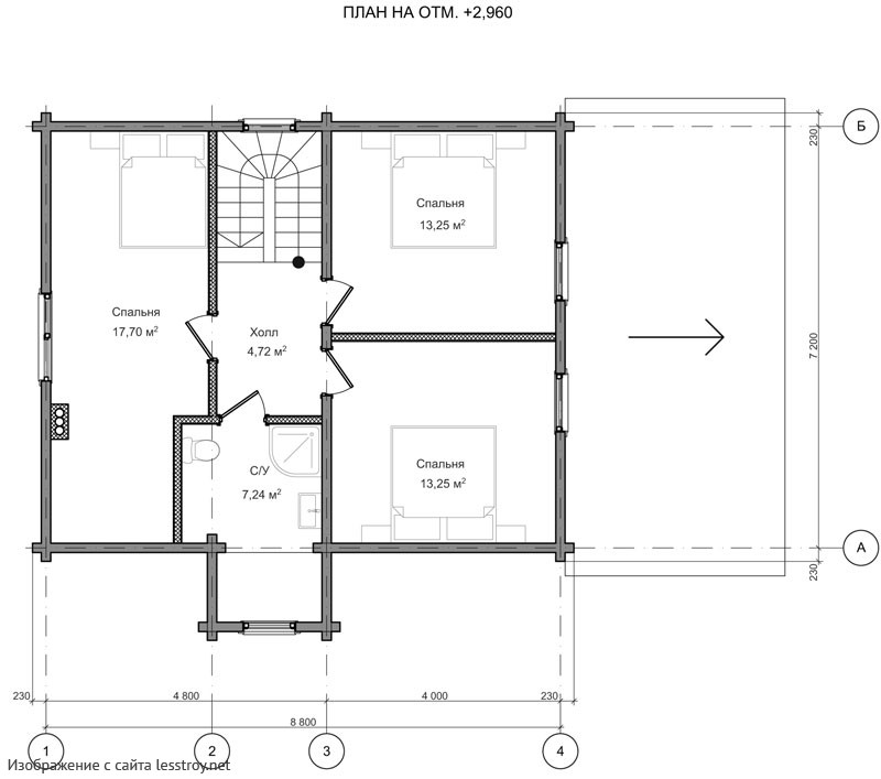
Здесь архитектура служит и вдохновению, и комфорту.Дом из бруса площадью 138 м² сочетает в себе экологичность и комфорт. Теплые стены из натурального дерева создают уютную атмосферу. Просторные спальни и гостиная подходят для семьи. Участок позволяет разбить цветник или поставить беседку.Характеристики
- Общая площадь: 138 м2
- Количество этажей: 2
- Стиль, разновидность: Дома в стиле Прованс
- Форма: Прямоугольные дома
- Тип кровли: Дома с многощипцовой крышей
- Отделка: Без отделки
- Размер: 8x12
Отправьте свои контакты и мы расчитаем вам смету
Скорее всего вам подойдут следующие проекты домов:
Дом подходит для:
Дом подходит для:
Дом подходит для:










