Проект двухэтажного дома Дом из клееного бруса Чехов-196
Площадь
196 м 2
Размер дома:
Этажей:
2
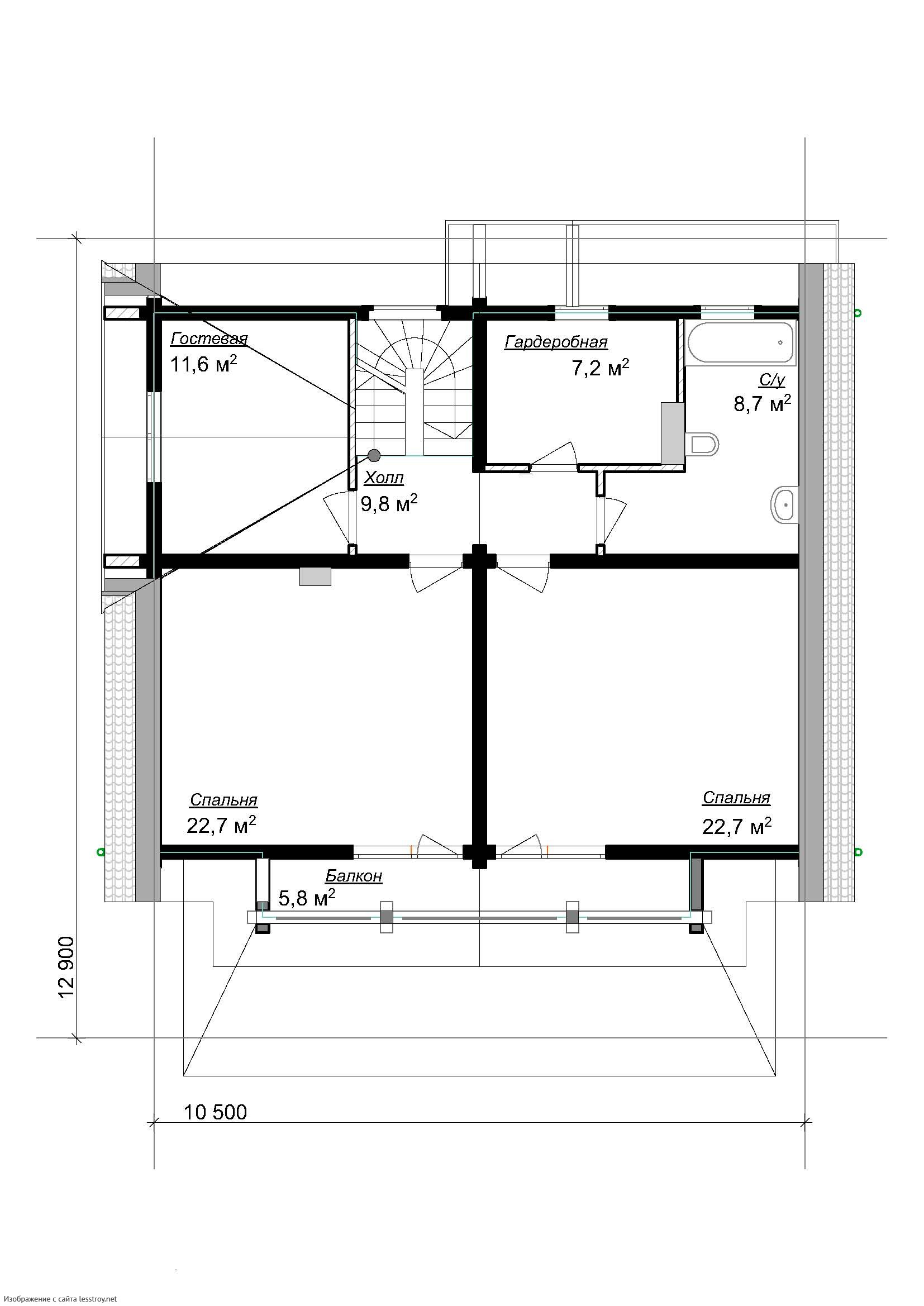
Спален:
4
Санузел:
0
Гараж:
Нет
Баня:
Нет
Терраса:
Нет
Панорамные окна:
Нет
Мастер-спальня:
Нет
О проекте
Просторный дом площадью 196 кв.м. с четырьмя спальнями — это современное воплощение элитного жилья. Клееный брус обеспечивает высокую прочность и долговечность конструкции. Стиль модерн подчеркивает статусность и изысканность владельцев. В таком доме каждая деталь продумана для максимального комфорта. Отличный выбор для большой семьи.Характеристики
- Общая площадь: 196 м2
- Количество этажей: 2
- Стиль, разновидность: Дома в стиле Модерн
- Форма: Квадратные дома
- Тип кровли: Дома с многощипцовой крышей
- Отделка: Без отделки
Отправьте свои контакты и мы расчитаем вам смету
Скорее всего вам подойдут следующие проекты домов:
Дом подходит для:
Дом подходит для:
Дом подходит для:












