Проект двухэтажного дома Дом Лапландия из двойного бруса
Площадь
79 м 2
Размер дома:
Этажей:
2
Спален:
2
Санузел:
0
Гараж:
Нет
Баня:
Нет
Терраса:
Нет
Панорамные окна:
Нет
Мастер-спальня:
Нет
О проекте
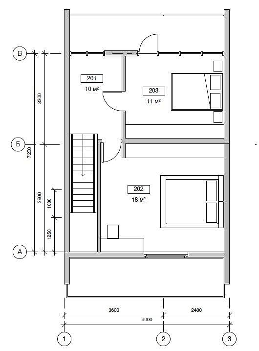
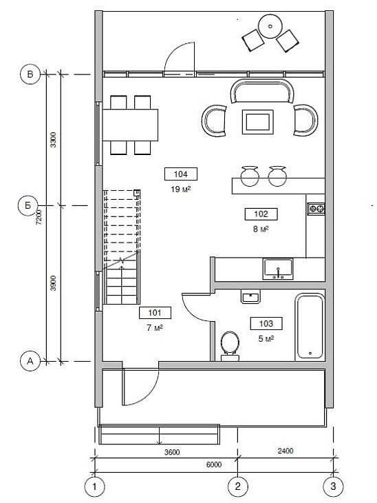
Дом из бруса площадью 79 м² отличается компактностью и уютом. Два этажа с двумя спальнями создают удобное пространство. Материал стен обеспечивает тепло и экологичность. Проект подходит для небольшой семьи.Характеристики
- Общая площадь: 79 м2
- Количество этажей: 2
- Стиль, разновидность: Дома в ином стиле
- Форма: Прямоугольные дома
- Тип кровли: Дома с многощипцовой крышей
- Отделка: Без отделки
Отправьте свои контакты и мы расчитаем вам смету
Скорее всего вам подойдут следующие проекты домов:
Дом подходит для:
Дом подходит для:
Дом подходит для:









