Проект одноэтажного дома Дорогобуж
Дом подходит для:
Площадь
90 м 2
Размер дома:
10х9
Этажей:
1
Спален:
2
Санузел:
1
Гараж:
Нет
Баня:
Нет
Терраса:
Нет
Панорамные окна:
Нет
Мастер-спальня:
Нет
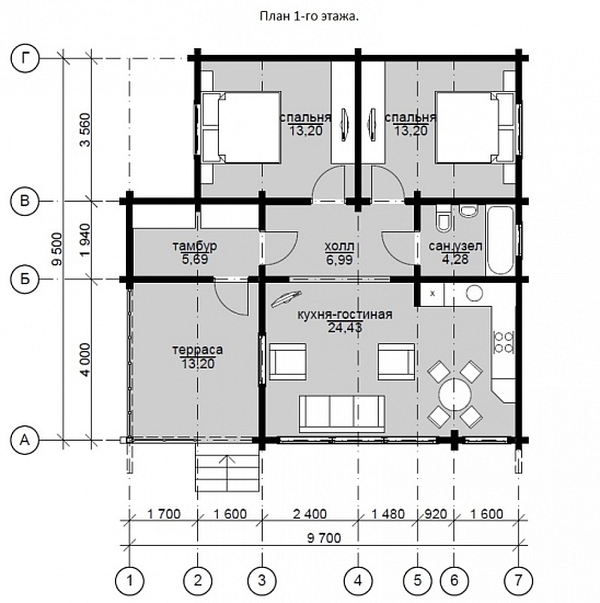
Планировка
Фасады
О проекте
Компактные 90 м² с жилыми 67 м² создают уютное пространство для небольшой семьи. Каркасная технология гарантирует тепло и энергоэффективность, а продуманная планировка делает жизнь удобной. Светлые интерьеры и натуральные материалы дарят ощущение спокойствия и уюта. Это идеальное решение для тех, кто ценит практичность и комфорт.Характеристики
- Общая площадь: 90 м2
- Жилая площадь: 67 м2
- Количество этажей: 1
- Гараж: нет
- Площадь кровли: 94 м2
- Отделка: Без отделки
- Фундамент: Дома со свайным фундаментом
Материалы и перечень работ
- Сваи сечением 150х150 мм., с оголовком 200х200 мм.
- Гидроизоляция по поверхности фундамента — рубероид.
- Устройство обвязки на фундамент (брус сечением 200×200 мм. хвойных пород)/ подкладная доска; устройство строительных лесов.
- Монтаж стен и внутренних перегородок по проекту.
- Все фронтоны дома изготовлены по проекту.
- Устройство лаг пола и балок перекрытия (по проекту: брус сечением 100 x200 мм. хвойных пород или «видовые балки» – из профилированного бруса) с шагом согласно проектной документации (не более 59см).
- Устройство стропильной системы (доска сечением 50×200 мм. хвойных пород) с шагом согласно проектной документации, но не более 60 см.
- Устройство обрешетки (доска сечением 25×150 мм хвойных пород).
- Устройство временной кровли из рубероида или гидроизоляционной пленки.
- В стоимость не входят
- В стоимость не входит
- В стоимость не входят
- Сваи сечением 150х150 мм., с оголовком 200х200 мм.
- Гидроизоляция по поверхности фундамента — рубероид.
- Устройство обвязки на фундамент (брус сечением 200×200 мм. хвойных пород)/ подкладная доска; устройство строительных лесов.
- Монтаж стен и внутренних перегородок по проекту.
- Все фронтоны дома изготовлены по проекту.
- Устройство лаг пола и балок перекрытия (по проекту: брус сечением 100 x200 мм. хвойных пород или «видовые балки» – из профилированного бруса) с шагом согласно проектной документации (не более 59см).
- Устройство стропильной системы (доска сечением 50×200 мм. хвойных пород) с шагом согласно проектной документации, но не более 60 см.
- Устройство обрешетки (доска сечением 25×150 мм хвойных пород).
- Устройство временной кровли из рубероида или гидроизоляционной пленки.
- В стоимость не входят
- В стоимость не входит
- В стоимость не входят
Что еще входит в стоимость:
Отправьте свои контакты и мы расчитаем вам смету
Скорее всего вам подойдут следующие проекты домов:
Дом подходит для:
Дом подходит для:
Дом подходит для:











