Проект двухэтажного дома Лавинья
Дом подходит для:
Площадь
169 м 2
Размер дома:
13,8 х 8,2
Этажей:
2
Спален:
2
Санузел:
2
Гараж:
Нет
Баня:
Нет
Терраса:
Нет
Панорамные окна:
Нет
Мастер-спальня:
Нет
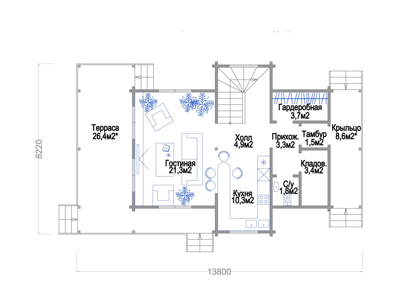
Планировка
О проекте
Уютный дом Лавинья площадью 169 м² с жилыми 118 м² создан для комфортной жизни. Брус в стенах создает теплую атмосферу, а металлочерепица на крыше гарантирует защиту. Две спальни и два санузла делают его идеальным для семьи. Вариативный фундамент подчеркивает универсальность этого жилья.Характеристики
- Общая площадь: 169 м2
- Жилая площадь: 118 м2
- Количество этажей: 2
- Гараж: нет
- Площадь кровли: 173 м2
- Отделка: Без отделки
Материалы и перечень работ
- По согласованию
- По согласованию
- По согласованию
- По согласованию
- По согласованию
- По согласованию
- По согласованию
- По согласованию
- По согласованию
- По согласованию
- По согласованию
- По согласованию
Что еще входит в стоимость:
Отправьте свои контакты и мы расчитаем вам смету
Скорее всего вам подойдут следующие проекты домов:
Дом подходит для:
Дом подходит для:
Дом подходит для:








