Проект двухэтажного дома Мистельбах
Площадь
220 м 2
Размер дома:
Этажей:
2
Спален:
4
Санузел:
0
Гараж:
Нет
Баня:
Нет
Терраса:
Нет
Панорамные окна:
Нет
Мастер-спальня:
Нет
О проекте
Дом, в котором хочется просыпаться каждое утро: уютные текстуры, мягкий свет и гармоничное пространство для жизни.Площадь в 150 м² позволяет чувствовать себя свободно. Наличие 3 спальни удовлетворит запросы семьи с детьми. Крыша из битумная черепица подчёркивает современный облик дома. Архитектура выполнена в стиле дома в классическом стиле.Характеристики
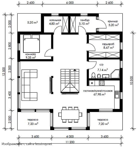
- Общая площадь: 220 м2
- Количество этажей: 2
- Стиль, разновидность: Дома в стиле Фахверк
- Форма: Прямоугольные дома
- Тип кровли: Дома с мансардной крышей
- Отделка: Без отделки
Отправьте свои контакты и мы расчитаем вам смету
Скорее всего вам подойдут следующие проекты домов:
Дом подходит для:
Дом подходит для:
Проект двухэтажного дома Проект 1240 - финский каркасный дом с мансардным этажом
Для большой семьи
Дом подходит для:
Дом подходит для:













