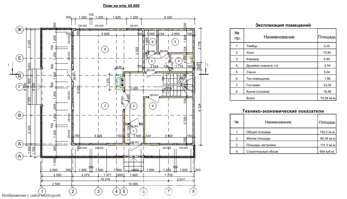
Проект двухэтажного дома Проект 21
Площадь
125 м 2
Размер дома:
Этажей:
2
Спален:
3
Санузел:
0
Гараж:
Нет
Баня:
Нет
Терраса:
Нет
Панорамные окна:
Нет
Мастер-спальня:
Нет
О проекте
Современный двухэтажный дом площадью 125 м² из SIP-панелей с оригинальной кровельной конструкцией. Три стильные спальни с панорамным остеклением и open-space гостиная отвечают самым взыскательным требованиям к комфорту.Характеристики
- Общая площадь: 125 м2
- Количество этажей: 2
- Стиль, разновидность: Дома в ином стиле
- Форма: Прямоугольные дома
- Тип кровли: Дома с иной крышей
- Отделка: Без отделки
Отправьте свои контакты и мы расчитаем вам смету
Скорее всего вам подойдут следующие проекты домов:
Дом подходит для:
Дом подходит для:
Дом подходит для:










