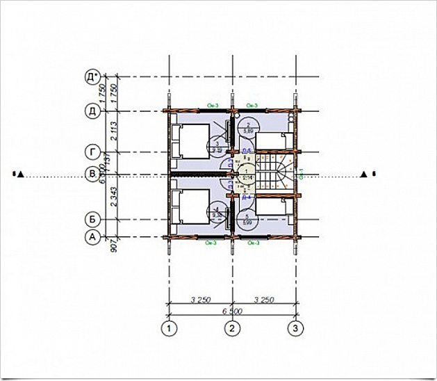
Проект двухэтажного дома Проект каркасного дома СГМ-6x8 (А)
Площадь
82 м 2
Размер дома:
6x8
Этажей:
2
Спален:
2
Санузел:
0
Гараж:
Нет
Баня:
Нет
Терраса:
Нет
Панорамные окна:
Нет
Мастер-спальня:
Нет
О проекте
Жилище, в котором даже коридор — это место для искусства. Площадь 82 м² — это свобода и контроль одновременно. Каркас делает дом надёжным при любой погоде. Профнастила придаёт дому выразительность и надёжность. Двухэтажная грамотная планировка создаёт идеальные условия для жизни всей семьи.Характеристики
- Общая площадь: 82 м2
- Количество этажей: 2
- Стиль, разновидность: Дома в ином стиле
- Форма: Прямоугольные дома
- Тип кровли: Дома с двускатной крышей
- Отделка: Без отделки
- Размер: 6x8







