Проект одноэтажного дома Путевый
Дом подходит для:
Площадь
173 м 2
Размер дома:
21,7х16,3
Этажей:
1
Спален:
3
Санузел:
2
Гараж:
Да
Баня:
Нет
Терраса:
Нет
Панорамные окна:
Нет
Мастер-спальня:
Нет
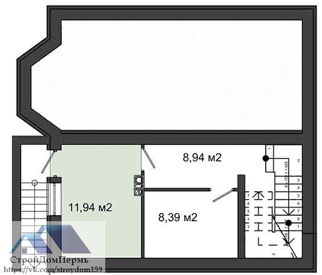
Планировка
Характеристики
- Общая площадь: 173 м2
- Жилая площадь: 138 м2
- Количество этажей: 1
- Гараж: 30,50
- Площадь кровли: 176 м2
- Отделка: Без отделки
Материалы и перечень работ
- Устройство фундамента рассчитывается индивидуально в соответствии с геологическими изысканиями.
- Устройство внутренних несущих стен из газосиликатного блока BONOLIT D500 с классом прочности В 3,5 толщиной 250 мм
- Устройство перемычек над окнами и дверьми в соответствии с проектом
- Устройство вентиляционных шахт 200х250 мм пескоцементные пустотные блоки заводского изготовления с возможностью монтажа фановой канализационной трубы
- Устройство монолитных железобетонных колонн, включая арматурные работы и уплотнение бетона глубинными вибраторами (Смесь бетонная готовая тяжелая, класс бетона В25 [M350], крупность заполнителя 5-20 мм) *если предусмотрены проектом
- Устройство сборного межэтажного перекрытия из облегченных железобетонных плит высотой 160 мм (максимально допустимая нагрузка до 800 кг/м2)
- Покрытие кровли: металлочерепица цвет на выбор
- Контробрешетка: брус 50*50
- Обрешетка: доска 150*25 мм
- Стропильная система: доска сечением 200*50 мм с огне-био пропиткой
- Чердачное перекрытие: доска сечением 200*50 мм с огне-био пропиткой
- В стоимость не входит
- Вводные гильзы инженерный сетей (электричество, водоснабжение, канализация).
- Устройство наружных несущих стен из газосиликатного блока BONOLIT D500 с классом прочности В 3,5 толщиной 375 мм
- Устройство фундамента рассчитывается индивидуально в соответствии с геологическими изысканиями.
- Устройство внутренних несущих стен из газосиликатного блока BONOLIT D500 с классом прочности В 3,5 толщиной 250 мм
- Устройство перемычек над окнами и дверьми в соответствии с проектом
- Устройство вентиляционных шахт 200х250 мм пескоцементные пустотные блоки заводского изготовления с возможностью монтажа фановой канализационной трубы
- Устройство монолитных железобетонных колонн, включая арматурные работы и уплотнение бетона глубинными вибраторами (Смесь бетонная готовая тяжелая, класс бетона В25 [M350], крупность заполнителя 5-20 мм) *если предусмотрены проектом
- Устройство сборного межэтажного перекрытия из облегченных железобетонных плит высотой 160 мм (максимально допустимая нагрузка до 800 кг/м2)
- Покрытие кровли: металлочерепица цвет на выбор
- Контробрешетка: брус 50*50
- Обрешетка: доска 150*25 мм
- Стропильная система: доска сечением 200*50 мм с огне-био пропиткой
- Чердачное перекрытие: доска сечением 200*50 мм с огне-био пропиткой
- В стоимость не входит
- Вводные гильзы инженерный сетей (электричество, водоснабжение, канализация).
- Устройство наружных несущих стен из газосиликатного блока BONOLIT D500 с классом прочности В 3,5 толщиной 375 мм
Что еще входит в стоимость:
Отправьте свои контакты и мы расчитаем вам смету
Скорее всего вам подойдут следующие проекты домов:
Проект одноэтажного дома Дом id-83140
Семья с одним ребенком
Дом подходит для:
Дом подходит для:
Проект одноэтажного дома Дом id-59493
Семья с одним ребенком
Дом подходит для:
Дом подходит для:
Дом подходит для:





















