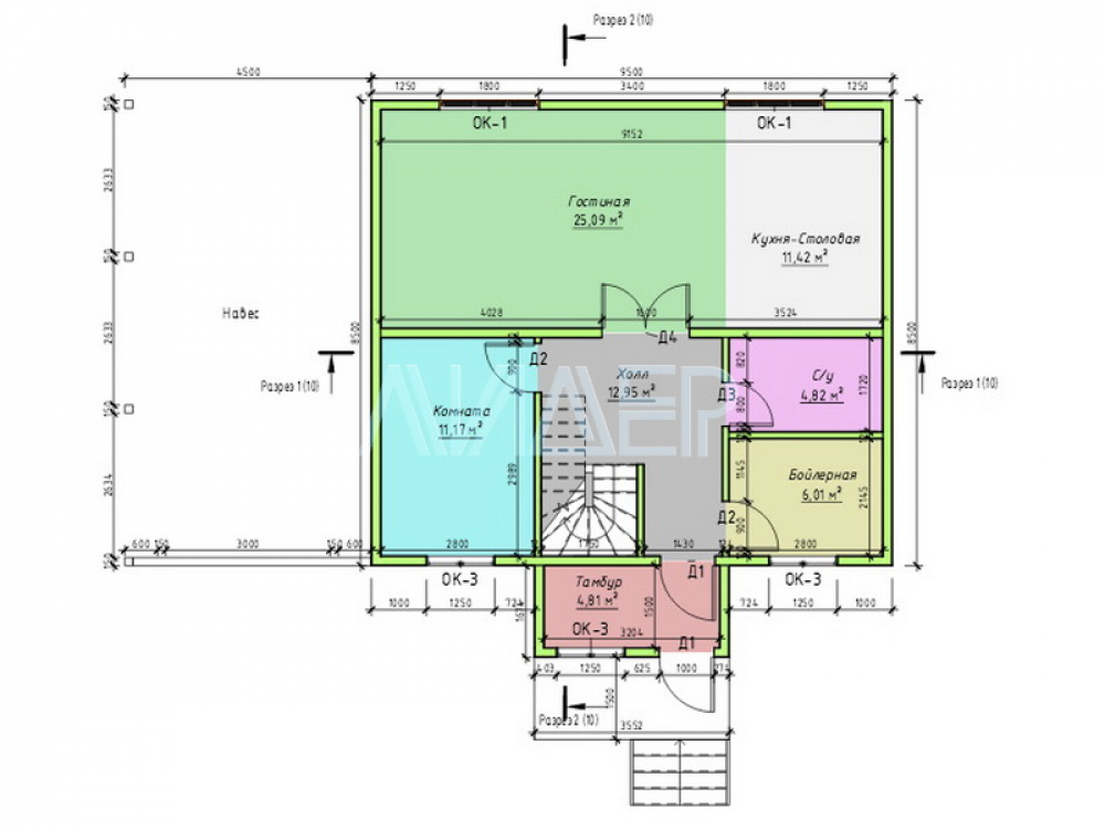
Проект двухэтажного дома Степаньковская слобода
Площадь
160 м 2
Размер дома:
8x9
Этажей:
2
Спален:
4
Санузел:
0
Гараж:
Нет
Баня:
Нет
Терраса:
Нет
Панорамные окна:
Нет
Мастер-спальня:
Нет
О проекте
Дом, в котором хочется создавать традиции.Каждый метр из 160 м² задействован с умом. Стены из Каркас хорошо держат тепло и защищают от шума. Крыша из металлочерепица подчёркивает современный облик дома. Двухэтажная грамотная планировка делает зонирование более логичным.Характеристики
- Общая площадь: 160 м2
- Количество этажей: 2
- Стиль, разновидность: Дома в ином стиле
- Форма: Прямоугольные дома
- Тип кровли: Дома с двускатной крышей
- Отделка: Без отделки
- Размер: 8x9
Отправьте свои контакты и мы расчитаем вам смету
Скорее всего вам подойдут следующие проекты домов:
Дом подходит для:
Дом подходит для:
Дом подходит для:











