Проект двухэтажного дома Вяземские сады
Площадь
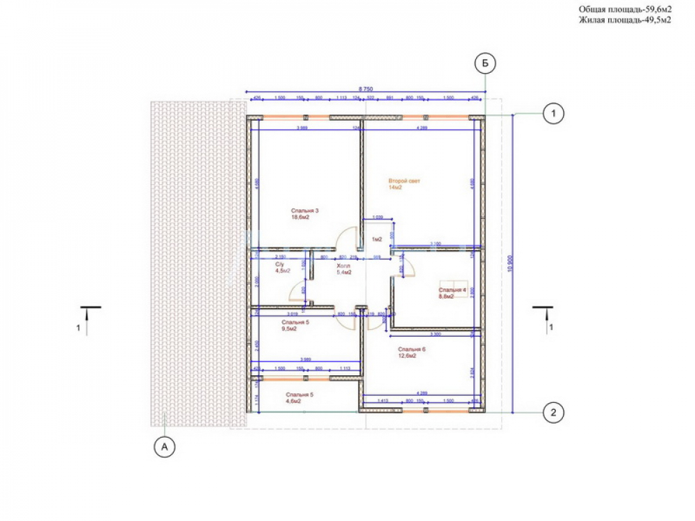
190 м 2
Размер дома:
11x11
Этажей:
2
Спален:
3
Санузел:
0
Гараж:
Нет
Баня:
Нет
Терраса:
Нет
Панорамные окна:
Нет
Мастер-спальня:
Нет
О проекте
Технологии помогли создать здание, которое радует глаз и упрощает жизнь.Площадь 190 м² — подходящий вариант для молодых семей. Архитектура выполнена в стиле дома в классическом стиле. Двухэтажная уютная планировка разделяет приватные и общественные зоны. Наличие 3 спальни удовлетворит запросы семьи с детьми.Характеристики
- Общая площадь: 190 м2
- Количество этажей: 2
- Стиль, разновидность: Дома в ином стиле
- Форма: Прямоугольные дома
- Тип кровли: Дома с двускатной крышей
- Отделка: Без отделки
- Размер: 11x11
Отправьте свои контакты и мы расчитаем вам смету
Скорее всего вам подойдут следующие проекты домов:
Дом подходит для:
Дом подходит для:
Дом подходит для:














