Проект двухэтажного дома Зеленый бор
Площадь
175 м 2
Размер дома:
Этажей:
2
Спален:
2
Санузел:
0
Гараж:
Нет
Баня:
Нет
Терраса:
Нет
Панорамные окна:
Нет
Мастер-спальня:
Нет
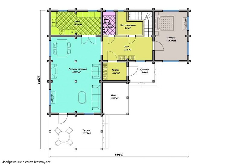
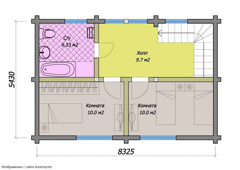
О проекте
В этом решении хромированные поверхности отражают город и детские улыбки.В доме — 108 м² рационально использованного пространства. Архитектура выполнена в стиле дома в классическом стиле. Газобетона делает дом надёжным при любой погоде. Одноэтажная уютная планировка делает зонирование более логичным.Характеристики
- Общая площадь: 175 м2
- Количество этажей: 2
- Стиль, разновидность: Дома в стиле Прованс
- Форма: Прямоугольные дома
- Тип кровли: Дома с двускатной крышей
- Отделка: Без отделки
Отправьте свои контакты и мы расчитаем вам смету
Скорее всего вам подойдут следующие проекты домов:
Дом подходит для:
Дом подходит для:
Дом подходит для:








