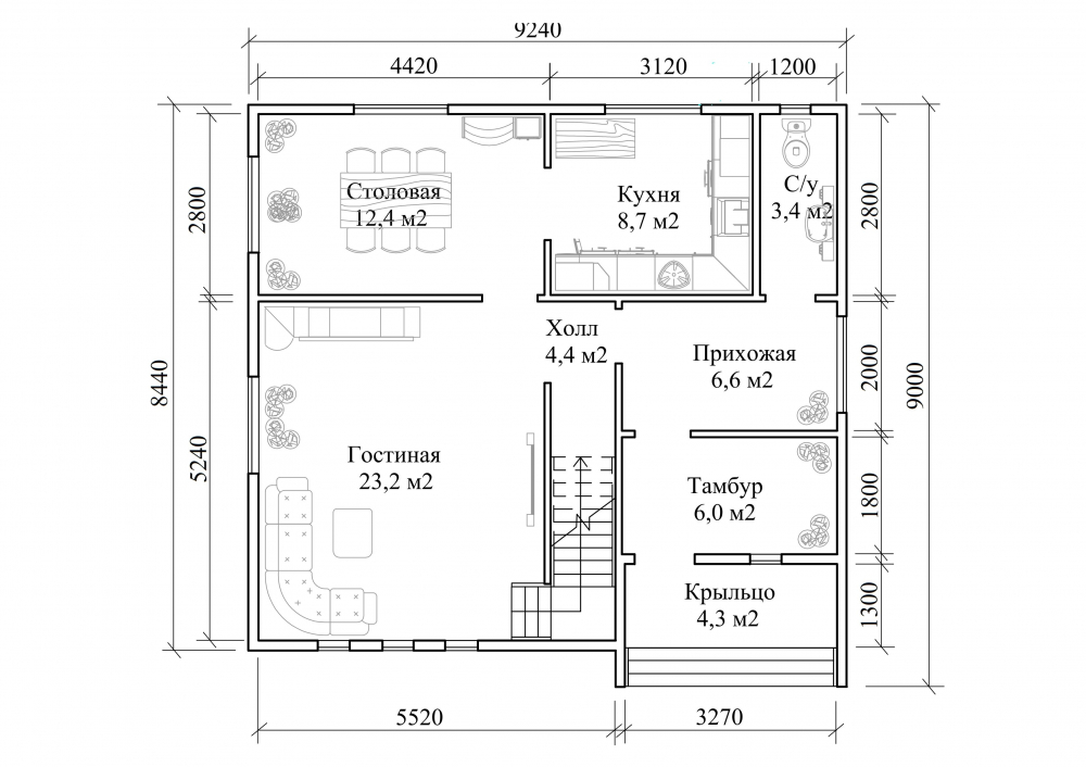
Проект двухэтажного дома Богемия
Площадь
147 м 2
Размер дома:
9x10
Этажей:
2
Спален:
3
Санузел:
0
Гараж:
Нет
Баня:
Нет
Терраса:
Нет
Панорамные окна:
Нет
Мастер-спальня:
Нет
О проекте
Дом выглядит стильно, но внутри царит теплая, гостеприимная атмосфера.63 м² жилого пространства — разумное решение для повседневной жизни. Одноэтажная просторная планировка обеспечивает комфортную навигацию внутри дома. В доме предусмотрено 1 спальня, что важно для комфорта. Дом спроектирован в духе дома в стиле русский.Характеристики
- Общая площадь: 147 м2
- Количество этажей: 2
- Стиль, разновидность: Дома в ином стиле
- Тип кровли: Дома с двускатной крышей
- Отделка: Без отделки
- Размер: 9x10
Отправьте свои контакты и мы расчитаем вам смету
Скорее всего вам подойдут следующие проекты домов:
Дом подходит для:
Дом подходит для:
Дом подходит для:














