Проект одноэтажного дома Дом из керамоблоков дом 1 этаж / 110 кв. м
Площадь
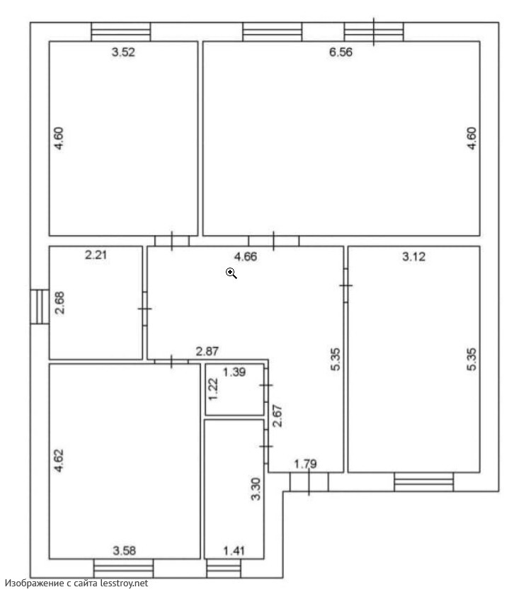
110 м 2
Размер дома:
Этажей:
1
Спален:
2
Санузел:
0
Гараж:
Нет
Баня:
Нет
Терраса:
Нет
Панорамные окна:
Нет
Мастер-спальня:
Нет
О проекте
Керамоблочный дом площадью 110 м² — это практичность и стиль. Материал сочетает в себе прочность и легкость. Внутреннее пространство организовано так, чтобы не было ощущения тесноты. Дом отлично впишется в любой ландшафт.Характеристики
- Общая площадь: 110 м2
- Количество этажей: 1
- Стиль, разновидность: Дома в ином стиле
- Форма: Прямоугольные дома
- Тип кровли: Дома с четырехскатной крышей (вальмовой)
- Отделка: Без отделки
Отправьте свои контакты и мы расчитаем вам смету
Скорее всего вам подойдут следующие проекты домов:
Проект одноэтажного дома Гом из керамоблоков 1 этаж / 90 м. кв
Семья с одним ребенком
Дом подходит для:
Дом подходит для:
Проект одноэтажного дома 95 м² Арт. 1.23
Семья с двумя детьми
Дом подходит для:
Дом подходит для:
Проект одноэтажного дома Миракл 125
Семья с двумя детьми
Дом подходит для:
Дом подходит для:













